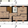
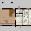
Nella nuova zona residenziale del comune di Mioglia proponiamo in vendita lotti di terreno edificabile con progetti approvati per la realizzazione ex novo di ville indipendenti con ampio giardino pianeggiante recintato, box auto e 130 mq di superficie abitativa; il tutto rispettando fin dalla progettazione il tessuto urbanistico esistente e con la garanzia di un'assistenza tecnica e cantieristica sino alla realizzazione completa del progetto. L'area e' adiacentissima al centro abitato e comprende un'area pianeggiante ottimamente servita ed esposta. La costruzione del nuovo resta indubbiamente una valida alternativa all'acquisto di case indipendenti che in zona risalgono spesso agli anni 60-70 e necessitano sovente di interventi più o meno onerosi di ristrutturazione...e ovviamente il piacere di personalizzare dall'inizio la propria casa...profuma di sogno liberato dal cassetto.
 
											L'utente non ha inserito alcuna descizione
												 Ci trovi qui:
						
						Piazza Rolla, 4, 17046						Sassello (SV)
						
												Tel: click per vedere | Mail: click per vedere | Web: http://www.romanoimmobiliare.it