Annuncio inserito da:   22REB

vendita - Albergo / Struttura ricettiva - Via G. Marconi , Comano Terme (TN)

Zona: non indicata
Rif. GF557/25
648.206€
  • 1204  mq
  • locali
  • C. E. Non indicata 
vedi sulla mappa

dettagli

Inserito: meno di 1 giorno
  • interno immobile
    • Tipo: Albergo / Struttura ricettiva
    • Stato: non indicato
    • Superficie: 1204 mq
    • Locali: 1
    • Bagni: 0
    • Tipo cucina: non indicato
    • Riscaldamento: non indicato
    • Tipo riscaldamento: non indicato
    • Clase energetica: non indicato
    • IPE: 0 kwh/ annui
  • esterno immobile
    • Piano: non indicato
    • Totale Piani: Non indicato
    • Livelli: non indicato
    • Balconi: non indicato
    • Box: non indicato
    • Giardino: non indicato
    • Pannelli solari: non indicato
  • altre informazioni
    • Categoria: Commerciale
    • Anno construzione: non indicato
    • Tipo proprietà: non indicato
    • Stato al rogito: non indicato
    • Arredato: non indicato
    • Spese cond./gen.: n.i. /anno
    • Permuta: non indicato
caratteristiche
  • presente
  • non presente
  • info mancanti
  • ascensore
  • terrazzo
  • condizionatore
  • zanzariere
  • cantina
  • soffitta
  • piscina interrata
  • imp. satellitare
  • cablato/lan
  • imp. allarme
  • adatto diversamente abili
  • reception
  • parch. clienti

descrizione

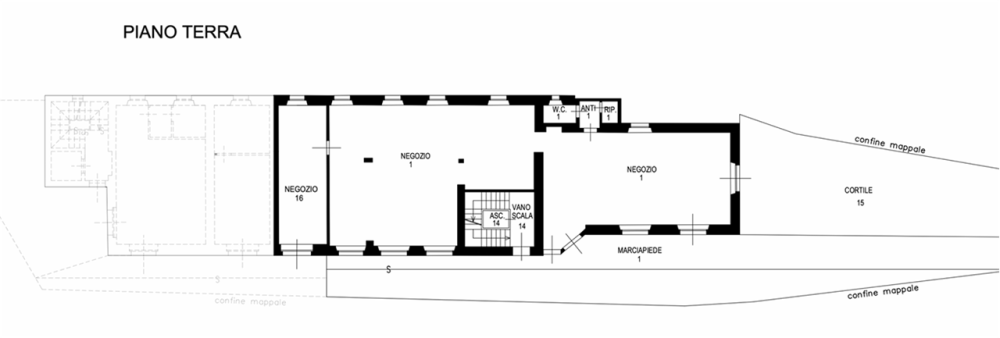
Struttura ricettiva situata a Comano Terme (TN), dispone di 23 stanze ed un alloggio per il custode, di pertinenza anche un negozio.


22REB è a disposizione per valutare come la nostra esperienza potrà favorirti nel realizzare il tuo miglior investimento.

L'immobile è oggetto di vendita giudiziaria.

22REB non si occupa di attività di intermediazione imm. di cui alla legge 39/89. Per motivi di privacy la foto dell'immobile/terreno è indicativa ma non esaustiva.
CLASSE ENERGETICA: In fase di valutazione

vedi l'annuncio sulla mappa

Indirizzo di questo annuncio: Via G. Marconi , Comano Terme (TN)

annunci simili per te

Rif. annuncio GF557/25
nome agenzia

Il nostro obiettivo è quello di fornire un servizio completo e di alta qualità ai nostri clienti, guidandoli passo dopo passo nel processo di investimento immobiliare attraverso aste giudiziarie. Collaboriamo con esperti del settore e professionisti qualificati per garantire ai nostri clienti la massima trasparenza e sicurezza nelle transazioni. Grazie alla nostra esperienza nel settore e alla nostra presenza internazionale, in particolare il mercato europeo (Spagna e Italia in primo piano) siamo in grado di identificare le migliori opportunità di investimento immobiliare e di guidare i nostri clienti nella scelta dell'immobile più adatto alle loro esigenze e obiettivi finanziari. Siamo fiduciosi che la nostra presenza sul mercato europeo delle aste giudiziarie porterà nuove opportunità di investimento a privati e investitori professionisti, consentendo loro di accedere a immobili di qualità a prezzi vantaggiosi e di ottenere rendimenti interessanti sui loro investimenti.


Tel: click per vedere | Mail: click per vedere | Web: WWW.22REB.COM