Annuncio inserito da:   Demitro Properties

vendita - appartamento - via Galliano, Giurdignano (LE)

Zona: non indicata
Rif. 4-ADM225
96.000€
  • 54  mq
  • locali
  • C. E. a1 
vedi sulla mappa

dettagli

Inserito: 2 anni e 9 mesi fa
  • interno immobile
    • Tipo: appartamento
    • Stato: ristrutturato
    • Superficie: 54 mq
    • Locali: 2
    • Bagni: 1
    • Tipo cucina: a vista
    • Riscaldamento: centralizzato
    • Tipo riscaldamento: non indicato
    • Clase energetica: a1
    • IPE: non indicata
  • esterno immobile
    • Piano: terra / rialzato di 1
    • Livelli: non indicato
    • Balconi: non indicato
    • Box: nessuno
    • Giardino: privato di 30mq
    • Pannelli solari: non indicato
  • altre informazioni
    • Categoria: Residenziale
    • Anno construzione: 2023
    • Tipo proprietà: non indicato
    • Stato al rogito: non indicato
    • Arredato: no
    • Spese cond./gen.: n.i.
    • Permuta: non indicato
caratteristiche
  • presente
  • non presente
  • info mancanti
  • ascensore
  • terrazzo
  • condizionatore
  • zanzariere
  • cantina
  • soffitta
  • piscina interrata
  • imp. satellitare
  • cablato/lan
  • imp. allarme
  • adatto diversamente abili

descrizione

Classe energetica: A1 - Giurdignano.
A Giurdignano antica cittadina sul versante orientale del Salento, rinomata per essere il "giardino megalitico"d’ Italia, sorge il nuovo complesso residenziale progettato dall’architetto Bolognese Alessandro Ballocchi.
Collocato a pochissimi chilometri dallo splendido mare Otrantino, le tipologie abitative godono di ampi terrazzi esterni e verdeggianti giardini privati.
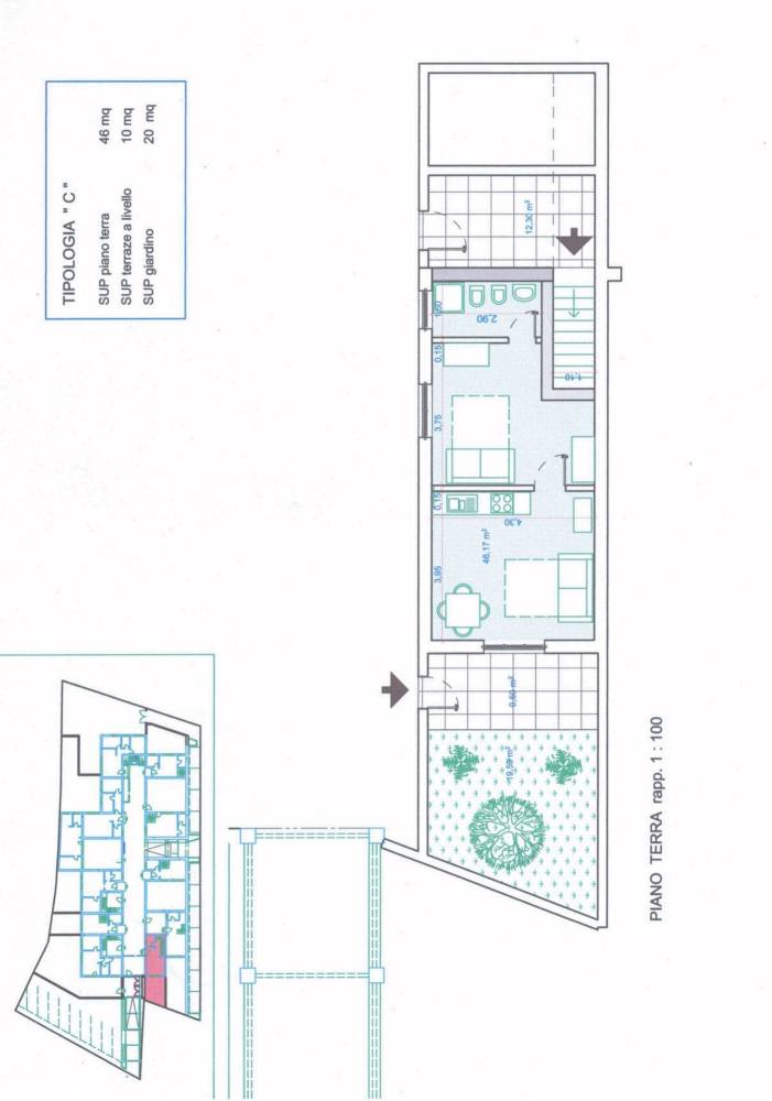
Tra le varie soluzioni in costruzione, proponiamo un luminoso bilocale costruito al piano terra di circa 61 mq. commerciali con terrazza e giardino di pertinenza.
Nella struttura, si denotano ambienti ben disimpegnati, con l’affaccio su tre lati, coperti da aree verdi che rendono il contesto interno riservato e silenzioso.
L'immobile si compone da un’ampia sala con angolo cottura che affaccia sul giardino di proprietà, una camera matrimoniale ed un bagno.
A corredo un posto auto di proprietà esterno.


RIFINITURE DEGLI APPARTAMENTI E DEI SERVIZI COMUNI

- Muratura esterna con isolamento.
- Pannelli solari termici.
- Infissi PVC a taglio termico con vetro basso emissivo.
- Pavimento in Grés di prima scelta (disponibile anche effetto parquet).
- Tapparelle elettriche con lamelle orientabili.
- Porta blindata.
- Videocitofono.
- Luce emergenza.
- impianto di aria condizionata.
- Edificio in Classe energetica A


PAVIMENTAZIONE INTERNA - in gress porcellanato e/o ceramica monocottura

INFISSI ESTERNI, INTERNI

ESTERNI: in alluminio preverniciato con taglio termico o in PVC, completi di ferramenta di chiusura e vetro-camera, con doppio sistema di apertura (anta e vasistas).
INTERNI: Con intelaiatura in legno abete e rivestimento da ambo le facce di laminato, completi di ferramenta di chiusura , con doppio sistema di apertura (anta e vasistas).
OSCURAMENTO: Tapparelle elettriche a liste orientabili e richiudibili a pacchetto .
PORTONCINI D'INGRESSO: blindato con struttura metallica in acciaio, tamburato e rivestito da ambo le facce con legno noce; completo di rostri di ancoraggio, serratura di sicurezza, guarnizioni antispiffero, spioncino e chiusura con cilindro europeo.
RIVESTIMENTI ESTERNI: Prospetti e parti comuni: in parte rivestiti in pietra leccese o carparo ed in parte intonacati,
Scala (ove prevista): in Travertino a taglio sega, montata a tappeto con zoccolo scalettato
Camminamenti d'accesso : in “chianche” di pietra leccese montate a correre.

APPARECCHI IGIENICO-SANITARI
Bagno: attacco e scarico per lavatrice. –
Predisposizione attacco e scarico per lavello e lavastoviglie.
Pannello solare termico per la produzione di acqua calda sanitaria

IMPIANTO ELETTRICO E T.V. CON ANTENNA CENTRALIZZATA - l'impianto sotto traccia completo di messa a terra. L’impianto su 4 (quattro) linee di distribuzione

IMPIANTO DI RISCALDAMENTO e RAFFRESCAMENTO autonomo a pompa di calore, con l'unità esterna posta sul giardino o terrazza ed unità interne poste nelle camere da condizionare (split), provviste di telecomando per l'accensione, lo spegnimento e la regolazione della temperatura ambiente oltre al controllo da remoto.

vedi l'annuncio sulla mappa

Indirizzo di questo annuncio: via Galliano , Giurdignano (LE)

annunci simili per te

Rif. annuncio 4-ADM225
nome agenzia

Demitro Properties

contatta l'utente

L'utente non ha inserito alcuna descizione


Ci trovi qui:
via R. M. Imbriani n°24, 73100 Lecce (LE)

Tel: click per vedere | Mail: click per vedere | Web: www.demitro.it