VENDESI TERRENO EDIFICABILE
Remax propone terreno edificabile di circa 500 mq in zona Ville a Terranuova Bracciolini.
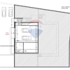
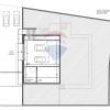
Il lotto di circa 500 mq si vende con oneri di urbanizzazione già inclusi e progetto approvato per un immobile su due livelli e libero su 4 lati.
L'edificio è previsto su una superficie di 154 mq circa lordi al piano terra e circa 93 mq seminterrati così suddivisi:
PIANO TERRA
Zona soggiorno/cucina open-space = 50 mq
Studio = 9 mq
Camera 01 = 22 mq
Camera 02 = 15 mq
Bagno 01 = 6 mq
Bagno 02 = 5 mq
Lavanderia = 7 mq
PIANO SEMINTERRATO
Garage = 41 mq
Cantina = 21 mq
Locale Tecnico = 11 mq
Il lotto si trova in prossimità della strada delle Ville vicino a San Giovanni Valdarno e quindi di facile accesso e vicino a tutti i servizi seppur immerso nel verde della campagna.
Gradita collaborazione con altre agenzie.
 
											L'utente non ha inserito alcuna descizione
												 Ci trovi qui:
						
						Piazza della Libertà, 12, 52027						San Giovanni Valdarno (AR)
						
												Tel: click per vedere | Mail: click per vedere | Web: www.remax.it/ideale2