Classe energetica: Non Disponibile - LOCALE AD USO UFFICIO PRESSO IL CENTRO COMMERCIALE INCOM. 
Proponiamo in vendita presso il Centro Commerciale Incom, un locale ad uso ufficio di 192 metri quadrati situato al secondo piano dell'edificio.
E' possibile personalizzarlo e adattarlo alle esigenze del futuro acquirente grazie alla sua metratura generosa il quale offre la possibilità di creare uno spazio di lavoro funzionale e confortevole.
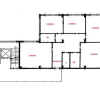
Gli spazi interni sono ampi e luminosi, grazie alla presenza di ampie finestre che favoriscono l'ingresso di luce naturale; l'immobile è composto da: ingresso, 4 vani, ripostiglio e due bagni. 
L'ubicazione all'interno di un centro commerciale permette inoltre di usufruire di tutti i servizi e le comodità offerte dalla zona circostante.
Il proprietario si rende disponibile anche alla locazione dello stesso con canone mensile di  650,00 trattabili.
Non esitate a contattarci per avere ulteriori informazioni e per fissare un appuntamento per una visita.
 
											L'utente non ha inserito alcuna descizione
												 Ci trovi qui:
						
						VIA NAPOLEONE BATTAGLIA 132, 71036						Lucera (FG)
						
												Tel: click per vedere | Mail: click per vedere