Annuncio inserito da:   Agenzia Immobiliare Metroquadro

vendita - appartamento - Via Giovanni XIII, Monte Urano (FM)

Zona: non indicata
Rif. AO59
158.000€
  • 182  mq
  • locali
  • C. E.
vedi sulla mappa

dettagli

Inserito: 1 anno e 7 mesi fa
  • interno immobile
    • Tipo: appartamento
    • Stato: buono/abitabile
    • Superficie: 182 mq
    • Locali: 7
    • Bagni: 3
    • Tipo cucina: angolo cottura
    • Riscaldamento: autonomo
    • Tipo riscaldamento: non indicato
    • Clase energetica: G
    • IPE: 0 kwh/ annui
  • esterno immobile
    • Piano: terra / rialzato
    • Totale Piani: Non indicato
    • Livelli: non indicato
    • Balconi: 1
    • Box: doppio
    • Giardino: non presente
    • Pannelli solari: non indicato
  • altre informazioni
    • Categoria: Residenziale
    • Anno construzione: 1974
    • Tipo proprietà: non indicato
    • Stato al rogito: libero
    • Arredato: no
    • Spese cond./gen.: 60 €
    • Permuta: non indicato
caratteristiche
  • presente
  • non presente
  • info mancanti
  • ascensore
  • terrazzo
  • condizionatore
  • zanzariere
  • cantina
  • soffitta
  • piscina interrata
  • imp. satellitare
  • cablato/lan
  • imp. allarme
  • adatto diversamente abili

descrizione

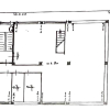
Classe energetica: G - Agenzia Immobiliare Metroquadro propone in vendita esclusiva, attico a Monte Urano centro di mq 183, piano terzo con ascensore, anno 1974, immobile e' da rivedere internamente. L' appartamento e' suddiviso su piano terzo e piano quarto collegato anche da una comoda scala interna, composto da ampio e luminoso soggiorno e studio con terrazzo di mt 16 panoramico vista monti, disimpegno notte, camera matrimoniale con bagno e doccia, camera doppia, ampio bagno con vasca, camera singola. Saliamo a piano quarto troviamo un ampio e luminoso living con camino, angolo cottura, sala da pranzo, disimpegno notte, camera matrimoniale, bagno con doccia, ripostiglio, studio. Piano terra due garage di mq 15 ciascuno.
Ottima posizione, palazzina in buono stato sito in Via Papa Giovanni XIII, a due minuti dal centro di Monte Urano, a 5 minuti dal nuovo Ospedale di Campiglione. Contattaci per visionarlo che aspetti!!

vedi l'annuncio sulla mappa

Indirizzo di questo annuncio: Via Giovanni XIII , Monte Urano (FM)

annunci simili per te

Rif. annuncio AO59
nome agenzia

Agenzia Immobiliare Metroquadro

contatta l'utente

L'utente non ha inserito alcuna descizione


Ci trovi qui:
Via Giacomo Boni n.1, 63822 Porto San Giorgio (FM)

Tel: click per vedere | Mail: click per vedere | Web: www.immobiliare-metroquadro.it