Capannone industriale in vendita a Bernareggio
Capannone di mq 1660 oltre a mq 1900 di piazzale a Bernareggio
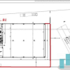
Proponiamo in vendita nel Comune di Bernareggio capannone industriale di nuova costruzione posto su un'area complessiva di mq. 3.825. Il Capannone ha una superficie produttiva di mq. 1.660 oltre mq. 200 ad uso uffici di cui 50 ca. per spogliatoi e servizi per la zona produttiva. Completa questa splendida soluzione un grande piazzale di mq. 1.900 ove è possibile realizzare due baie di carico (costo da quantificare a parte). Il capannone è stato pensato e progettato per quelle aziende che oltre agli spazi produttivi hanno necessità di avere una grande area esterna utile per le attività di carico/scarico. Bilici e mezzi pesanti hanno tutto lo spazio necessario per effettuare in comodità e sicurezza tutte le manovre. Disponibile inoltre sul lotto, la possibilità di implementare l'area coperta di mq. 300. Il capannone viene consegnato con gli impianti al piede per quanto riguarda la zona produttiva e gli uffici open-space con pavimenti galleggianti, servizi ed impianto di riscaldamento/raffrescamento. Consegna immobile: un anno circa dalla sottoscrizione del preliminare di vendita.
 
											L'utente non ha inserito alcuna descizione
												 Ci trovi qui:
						
						Via Margherita De Vizzi Viganò 93/95, 20092						Cinisello Balsamo (MI)
						
												Tel: click per vedere | Mail: click per vedere | Web: www.sogim.net