Annuncio inserito da:   Agenzia Gabetti

vendita - villa singola - Via Edison Thomas, Nerviano (MI)

Zona: non indicata
Rif. 190410
410.000€
  • 158  mq
  • locali
  • C. E. A+ 
vedi sulla mappa

dettagli

Inserito: 1 anno e 6 mesi fa
  • interno immobile
    • Tipo: villa singola
    • Stato: non indicato
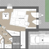
    • Superficie: 158 mq
    • Locali: 4
    • Bagni: 2
    • Tipo cucina: non indicato
    • Riscaldamento: non indicato
    • Tipo riscaldamento: non indicato
    • Clase energetica: A+
    • IPE: 2 kwh/mq annui
  • esterno immobile
    • Piano: non indicato di 2
    • Livelli: non indicato
    • Balconi: 1
    • Box: singolo di 19mq
    • Giardino: privato di 94mq
    • Pannelli solari: non indicato
  • altre informazioni
    • Categoria: Residenziale
    • Anno construzione: non indicato
    • Tipo proprietà: non indicato
    • Stato al rogito: non indicato
    • Arredato: no
    • Spese cond./gen.: n.i. /mese
    • Permuta: non indicato
caratteristiche
  • presente
  • non presente
  • info mancanti
  • ascensore
  • terrazzo
  • condizionatore
  • zanzariere
  • cantina
  • soffitta
  • piscina interrata
  • imp. satellitare
  • cablato/lan
  • imp. allarme
  • adatto diversamente abili

descrizione

[AGGIORNAMENTO - 2 Ville] Stai cercando la tua prossima dimora a NERVIANO?, non perdere questa incredibile opportunità! Presentiamo con entusiasmo questa prossima realizzazione,VILLE Signorili con giardino privato! Nelle vicinanze di Via Edison. Caratteristiche Principali: • Quadrilocali: Spazi ben distribuiti offrendo comfort e funzionalità. • Tre Camere: due matrimoniali (P.T e P.1) e una cameretta al P.1. • Servizi: Massimo comfort e praticità per te e la tua famiglia. • Giardino Privato: Spazio all'aria aperta per momenti di relax, con varie metrature. • Box: La comodità di parcheggiare senza stress, direttamente a casa tua auto e moto. • Posti Auto: comodi parcheggi per i tuoi ospiti e per la tua famiglia. • Condominio: Nessun condominio o spesa extra annuale • Finiture: Tutte di prima scelta con possibili personalizzazioni • Classe Energetica: Garanzia di efficienza e risparmio energetico, per un ambiente sano e sostenibile. A partire da 410.000€ Un'opportunità imperdibile per entrare nella tua nuova casa a Nerviano! 0331 585871 Per maggiori informazioni, ti aspettiamo inoltre nel nostro Ufficio a Nerviano in Viale Villoresi 37. Non lasciarti sfuggire questa occasione unica di vivere nel comfort e nell'eleganza di un'abitazione pensata per te. Contattaci oggi stesso per prenotare la tua visita e scoprire LA TUA futura CASA! Devi vendere il tuo immobile? Contattaci per una consulenza gratuita, si valutano PERMUTE!

vedi l'annuncio sulla mappa

Indirizzo di questo annuncio: Via Edison Thomas , Nerviano (MI)

annunci simili per te

Rif. annuncio 190410
nome agenzia

Agenzia Gabetti

contatta l'utente

L'utente non ha inserito alcuna descizione


Ci trovi qui:
Viale Villoresi 37, 20014 Nerviano (MI)

Tel: click per vedere | Mail: click per vedere | Web: www.gabettinerviano.it