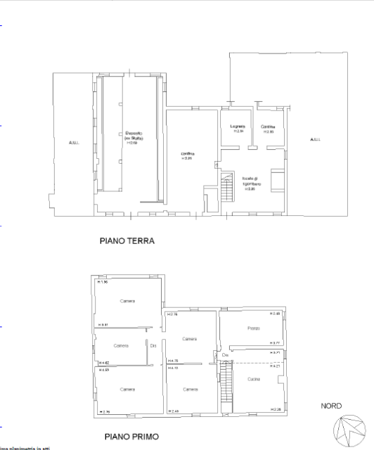
Poco distante dal comune di Savignano, proponiamo storico rustico su lotto di circa 4.000 mq. L'abitazione è composta da 13 vani di cui, al piano primo, 5 camere, una cucina e una sala da pranzo. Al piano terra, un deposito, 2 cantine, una legnaia e uno sgombero. Per un totale di circa 360 mq. Al piano terra troviamo altri due fabbricati abbinati, accatastati C/2 ad uso deposito, rispettivamente di 128 mq e 53 mq. Completa l'immobile un altro fabbricato in corpo separato accatastato C/6 di oltre 50 mq. L'immobile si presta a diversi usi non essendoci vincoli particolari. Possibilità di acquistare porzioni di terra confinanti fino a 40.000 mq. Per maggiori informazioni Ricci Gianluca 380 2913938 o scrivere a rimini@immobiliareromagna.it. RIF-501
 
											L'utente non ha inserito alcuna descizione
												 Ci trovi qui:
						
						Viale Tiberio n. 28, 47821						Rimini (RN)
						
												Tel: click per vedere | Mail: click per vedere | Web: www.immobiliareromagna.it