Annuncio inserito da:   Barbieri immobiliare Srl

vendita - locale commerciale - Andrea Costa, Cervia (RA)

Zona: non indicata
Rif. BRB506
300.000€
  • 70  mq
  • -   locali
  • C. E. Non indicata 
vedi sulla mappa

dettagli

Inserito: 10 mesi fa
  • interno immobile
    • Tipo: locale commerciale
    • Stato: buono/abitabile
    • Superficie: 70 mq
    • Locali: 0
    • Bagni: 2
    • Tipo cucina: non indicato
    • Riscaldamento: non presente
    • Clase energetica: non indicato
    • IPE: 0 kwh/ annui
  • esterno immobile
    • Piano: terra / rialzato
    • Totale Piani: Non indicato
    • Livelli: non indicato
    • Balconi: non indicato
    • Box: non indicato
    • Giardino: non presente
    • Pannelli solari: non indicato
  • altre informazioni
    • Categoria: Commerciale
    • Anno construzione: non indicato
    • Tipo proprietà: non indicato
    • Stato al rogito: libero
    • Arredato: no
    • Spese cond./gen.: n.i.
    • Permuta: non indicato
caratteristiche
  • presente
  • non presente
  • info mancanti
  • ascensore
  • terrazzo
  • condizionatore
  • zanzariere
  • cantina
  • soffitta
  • piscina interrata
  • imp. satellitare
  • cablato/lan
  • imp. allarme
  • adatto diversamente abili
  • reception
  • parch. clienti

descrizione

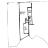
Vendiamo a Cervia, in posizione centrale e di forte passaggio negozio di circa 70 mq. Il negozio è dotato di 2 ingressi e attualmente è suddiviso in vari ambienti fra cui un'ampia area espositiva, 2 bagni, 2 stanze ed è servito da un ampia vetrina. In ottime condizioni, si presta a diverse soluzioni commerciali (ambulatorio, vendita la dettaglio, ufficio). Posizione splendida, con vetrina sulla principale piazza di Cervia. Maggiori info in ufficio.

vedi l'annuncio sulla mappa

Indirizzo di questo annuncio: Andrea Costa , Cervia (RA)

annunci simili per te

Rif. annuncio BRB506
nome agenzia

Barbieri immobiliare Srl

contatta l'utente

L'utente non ha inserito alcuna descizione


Ci trovi qui:
Viale Volturno 27, 48015 Cervia (RA)

Tel: click per vedere | Mail: click per vedere | Web: agenziabarbieri.com/posizione-immobile/trilocale-con-giardino-cervia/