Annuncio inserito da:   RE/MAX Platinum 9

vendita - terreno agricolo, Bolognetta (PA)

Zona: non indicata
Rif. 40791047-22
30.000€
  • 10000  mq
vedi sulla mappa

dettagli

Inserito: 10 mesi fa
  • caratteristiche
    • Tipo: agricolo
  • altre informazioni
    • Categoria: Terreno
    • Tipo proprietà: non indicato

descrizione

Questo terreno in vendita si trova nella splendida cornice di Bolognetta, un comune in provincia di Palermo, ed è caratterizzato da una particolare conformazione scoscesa. Il terreno è in un luogo strategico essendo vicino allo scorrimento Pa-Ag.
Con una superficie di 10000 metri quadrati, questo terreno è adatto per chiunque desideri avviare un'attività agricola.
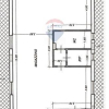
Il terreno è inoltre dotato di un progetto approvato per la realizzazione di una struttura rurale di 120 metri quadrati.
Se stai cercando un terreno in una zona tranquilla e rigogliosa, con un progetto già approvato questo è l'immobile perfetto per te.

vedi l'annuncio sulla mappa

Indirizzo di questo annuncio: , Bolognetta (PA)

annunci simili per te

Rif. annuncio 40791047-22
nome agenzia

RE/MAX Platinum 9

contatta l'utente

L'utente non ha inserito alcuna descizione


Ci trovi qui:
Via Sciuti, 98, 96100 Siracusa (SR)

Tel: click per vedere | Mail: click per vedere | Web: www.remax.it/platinum9