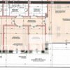
Classe energetica: A4 - Proponiamo un appartamento con due camere da letto, due bagni, uno studio, un terrazzo abitabile, con possibilità di acquisto di un lastrico solare privato di 88 metri quadri, un posto auto coperto e una cantina, posto al primo piano di un edificio in costruzione di tre piani a Lignano Sabbiadoro. 
La posizione strategica permette di garantire la tranquillità dellarea circostante, pur essendo a pochi minuti dalla spiaggia.
Entrando nellappartamento, ci troviamo subito nella zona giorno di 25,90 metri quadri, un open-space che include il soggiorno, la sala da pranzo e la cucina, dotata di superficie radiante a pavimento e condizionamento estivo a fan-coil.
Dalla zona giorno si accede al terrazzo perimetrale di 46,60 metri quadri, ideale per pranzi allaperto o momenti di relax.
Proseguendo verso la zona notte, troviamo un disimpegno che porta alla camera matrimoniale di 14,20 metri quadri con un bagno finestrato privato di 4,12 metri quadri, unulteriore camera da letto di 9 metri quadri e uno studio di 6 metri quadri. 
Completa la zona notte un bagno di 4,38 metri quadri. 
La pavimentazione dellappartamento sono personalizzabili a piacere del cliente, con scelta di piastrelle in gres porcellanato oppure in listoni di legno prefinito.
L'edificio offre disponibilità di acquistare dei posti auto coperti, una cantina e un lastrico solare di 88 metri quadri.
Le immagini sono solo a scopo illustrativo. La struttura reale dellimmobile potrebbe differire.
Per maggiori informazioni su questo appartamento in vendita a Lignano Sabbiadoro, contatta l'agenzia impREsa di Pordenone al numero 0434-311665 chiedendo dell'immobile con riferimento I/AB036
Oppure visitate il sito:
... href="... target="_blank" style="background-color: rgb(255, 255, 255);">...
 
											L'utente non ha inserito alcuna descizione
												 Ci trovi qui:
						
						via Bertossi, 4, 33170						Pordenone (PN)
						
												Tel: click per vedere | Mail: click per vedere | Web: www.impresaimmobiliare.com