In VENDITA soluzione immobiliare per Uffici, zona Ospedaletto, facente parte di un complesso direzionale più ampio di alta qualità dl punto di vista costruttivo e in prossimità della strada di grande comunicazione Fi-Pi-Li e dell' area verde adiacente.
Rif. 2024315 - L'ufficio in vendita si trova nella zona di Ospedaletto, una delle più ricercate di Pisa per la sua comodità e la presenza di importanti attività commerciali e di servizi. L'edificio, che ospita un complesso di uffici, è situato al piano nobile e gode di un'ottima posizione all'interno del contesto urbano. Attualmente, l'ufficio è dato in locazione, garantendo un rendimento sicuro e stabile per gli investitori.
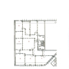
La superficie totale è di 335 metri quadrati, di cui 330 calpestabili, suddivisi in 10 locali e 3 bagni.
Lo stato di conservazione è ottimo, grazie alla manutenzione costante e al fatto che le stanze sono state separate mediante l'utilizzo di pannelli, garantendo così una maggiore flessibilità nell'organizzazione degli spazi.L'ufficio è dotato di allarme per garantire la massima sicurezza e tranquillità ai suoi occupanti. Il riscaldamento è centralizzato, alimentato da aria o energia elettrica, garantendo un maggiore risparmio energetico e un comfort ottimale.
L'edificio si sviluppa su 3 piani, offrendo quindi ampi spazi e una distribuzione funzionale degli ambienti.In sintesi, questo ufficio in vendita rappresenta un'ottima opportunità per chi desidera investire in uno spazio di lavoro moderno e funzionale, situato in una delle zone più ambita di Pisa e dotato di tutte le comodità e le tecnologie necessarie per svolgere al meglio le proprie attività. L'immobile di 335 mq complessivi è ubicato al primo piano della palazzina con ascensore, ed è attualmente già suddiviso in più ambienti con pareti mobili eventualmente modificabili, contro-soffittature e pavimentazione di pregio, climatizzazione, rete autonoma di telefonia e dati, impianti anti-intrusione e rilevazione antincendio, servizi e impianti a norma. L' immobile può eventualmente rappresentare un ottimo investimento per le numerose professionalità presenti nel contesto.
Per informazioni contattare l'Agenzia menzionando il numero di riferimento.
 
											L'utente non ha inserito alcuna descizione
												 Ci trovi qui:
						
						Via Carlo Cattaneo 59, 56100						Pisa (PI)
						
												Tel: click per vedere | Mail: click per vedere | Web: www.megaronimmobiliare.it