BUCINE - BADIA A RUOTI - Vendiamo Terratetto di nuova costruzione libero su tre lati, accessoriato da giardino privato.
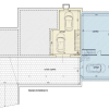
L'immobile, accessibile tramite ingresso indipendente, si compone di: soggiorno open space con angolo cottura e bagno al piano terra, tre camere da letto e bagno al piano primo, accessibile tramite scala interna.
Dal soggiorno è possibile accedere al giardino, ove è presenta una loggia di circa 20mq.
Al piano seminterrato, accessibile sia dal garage che dal soggiorno, troviamo garage ed ampio spazio taverna.
Il giardino privato, contorna l'immobile sui tre lati e misura circa 320mq.ù
25 minuti di macchina dal casello A1 Valdarno, 35 minuti da Siena, 40 minuti da Arezzo.
(Attualmente l'immobile presenta le seguenti opere: SOGLIE PER TUTTE LE APERTURE, INTONACATO, IMBIANCATO, DOCCE E CALATE IN RAME, PREDISPOSIZIONE CANNA FUMARIA TERMO CAMINO O STUFA, FOSSE BIOLOGICHE INDIPENDENTI N° 3 CON SCARICHI ODORI GIA AL TETTO, SCARICHI A RETE FOGNARIA ACQUE SCURE E CHIARE, TUBO ACQUA DA POZZETTO CONTATORI A INGRESSO GARAGE,  PREDISPOSIZIONE PER INSTALLAZIONE CANNA FUMARIA TAVERNA, CORRUGATO DA VANO CONTATORI ENEL A INGRESSO GARAGE, CORRUGATO DA POZZETTO A INGRESSO GARAGE PER LINEA TELEFONICA, TUBO METANO DA VANO CONTATORI A FACCIATA, STRADA ACCESSO URBANIZZATA E ASFALTATA, PIAZZALE PRIVATO E ACCESSO GARAGE CON PAVIMENTO CON AUTOBLOCCANTI
 ALTRE OPERE DI URBANIZZAZIONE GIA COMPLETATE)
 
											L'utente non ha inserito alcuna descizione
												 Ci trovi qui:
						
						Lungarno Cristoforo Colombo, 46/b, 50100						Firenze (FI)
						
												Tel: click per vedere | Mail: click per vedere | Web: soges.it