Annuncio inserito da:   DOMY ONLINE S.R.L.

vendita - Terratetto - Via Poggio 5, Grognardo (AL)

Zona: non indicata
Rif. AL300/23LU-0411-25-1600
28.081€
  • 292  mq
  • 10  locali
  • C. E.
vedi sulla mappa

dettagli

Inserito: 3 mesi fa
  • interno immobile
    • Tipo: Terratetto
    • Stato: non indicato
    • Superficie: 292 mq
    • Locali: 10
    • Bagni: 3
    • Tipo cucina: non indicato
    • Riscaldamento: non indicato
    • Tipo riscaldamento: non indicato
    • Clase energetica: G
    • IPE: 0 kwh/mq annui
  • esterno immobile
    • Piano: non indicato di 3
    • Livelli: non indicato
    • Balconi: 1
    • Box: singolo
    • Giardino: privato di 160mq
    • Pannelli solari: non indicato
  • altre informazioni
    • Categoria: Residenziale
    • Anno construzione: non indicato
    • Tipo proprietà: non indicato
    • Stato al rogito: non indicato
    • Arredato: no
    • Spese cond./gen.: n.i. /mese
    • Permuta: non indicato
caratteristiche
  • presente
  • non presente
  • info mancanti
  • ascensore
  • terrazzo
  • condizionatore
  • zanzariere
  • cantina
  • soffitta
  • piscina interrata
  • imp. satellitare
  • cablato/lan
  • imp. allarme
  • adatto diversamente abili

descrizione

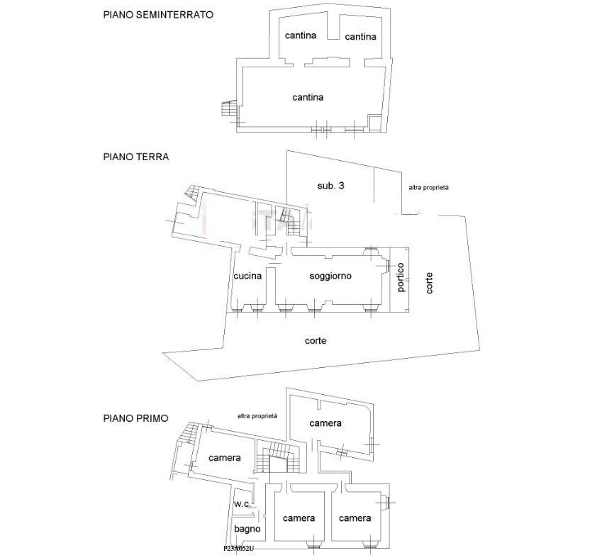
Intera piena proprietà di fabbricato di civile abitazione, con annesso sedime pertinenziale, sito in Grognardo Via Poggio n°5 e composto: al piano seminterrato da due cantine, da un disimpegno, da un piccolo servizio igienico, da un piccolo ripostiglio e da un piccolo locale caldaia; al piano terreno da un ampio soggiorno, da una cucina, da un altro soggiorno (già cantina), da un piccolo ripostiglio, da un vano scala per l'accesso/recesso al/dal soprastante piano primo, da un piccolo porticato e da un sedime di corte; al piano primo da quattro camere, da un corridoio/disimpegno, da due servizi igienici, da una scala esterna ed un piccolo ballatoio (per l'accesso diretto dall'esterno) e da una scala interna per l'accesso/recesso al/dal sottostante piano terreno. - Il Prezzo visualizzato è la Base d'Asta in quanto l’immobile è oggetto di esecuzione immobiliare venduto tramite Asta Giudiziaria. - L'immobile aggiudicato, viene venduto libero e sgombro da persone cose ed ipoteche nello stato di fatto e di diritto in cui si trova. - Non rappresentiamo il Tribunale, ma lavoriamo nell'esclusivo interesse del potenziale acquirente per garantire un acquisto sicuro. - I consulenti di ASTE ITALIA ti assisteranno in tutte le attività dell'iter giudiziario dalla visita dell'immobile fino alla consegna chiavi. - Contatta il nostro Servizio Clienti , i nostri operatori sono a disposizione per chiarire i molteplici dubbi per partecipare alle ASTE.

vedi l'annuncio sulla mappa

Indirizzo di questo annuncio: Via Poggio 5 , Grognardo (AL)

annunci simili per te

Rif. annuncio AL300/23LU-0411-25-1600
nome agenzia

DOMY ONLINE S.R.L.

contatta l'utente

L'utente non ha inserito alcuna descizione


Ci trovi qui:
Via San Lorenzo 5 Int. 41, 16123 Genova (GE)

Tel: click per vedere | Mail: click per vedere | Web: www.asteitalia.online