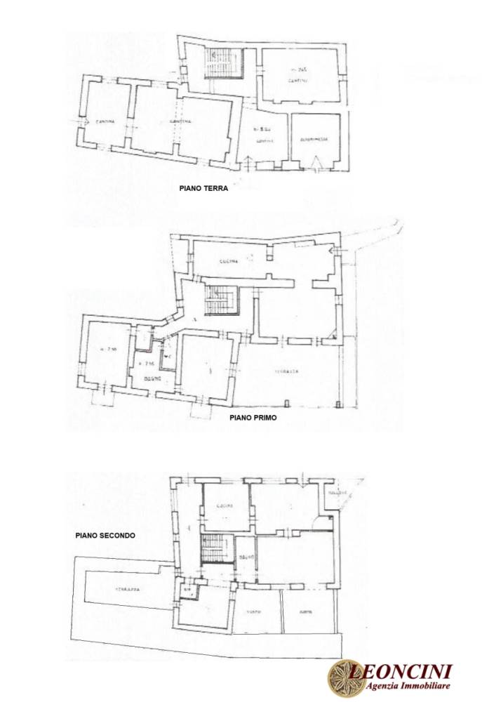
P109 Bagnone zona verde e soleggiata con stupenda vista sulla vallata, ad un altezza di 300 m.s.l.m., proponiamo rustico casale di 570 mq. disposti su tre piani.nnStruttura in parte in pietra e parte in muratura. Immobile da ristrutturare composto al piano terra di locali cantine voltati e con accesso diretto al terreno.nnPiano primo composto di cucina, sala pranzo, soggiorno, disimpegno, due camere letto, due bagni, due balconi e ampia terrazza aperta sulla vallata. Piano secondo composto di corridoio d'entrata, cucina, soggiorno, disimpegno, due camere letto, bagno.nn Attualmente accatastato come due unità abitative. Ampio terreno di circa 60.000 mq. con ottima esposizione e con sorgente d'acqua e laghetto.nnDistanza dal mare 35 minuti.nnUscita autostrada Pontremoli 15 km. Aulla 15 km. - Maggiori Dettagli: Possibilità Piscina, Camino, Cucina Abitabile, Giardino
 
											L'utente non ha inserito alcuna descizione
												 Ci trovi qui:
						
						Via Aldo Moro, 2, 54028						Villafranca in Lunigiana (MS)
						
																		Tel: click per vedere | Cell: click per vedere | Mail: click per vedere | Web: https://www.immobiliareleoncini.it