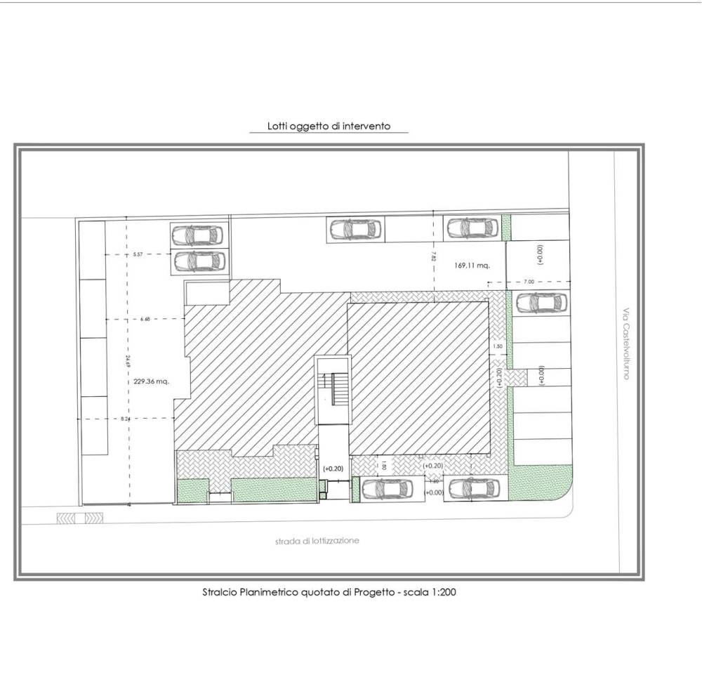
Terreno edificabile della consistenza di circa mq 900 con progetto già approvato al Comune di Mondragone (CE); la realizzazione prevede un locale commerciale al piano terra con triple vetrine frontali e laterali di circa 200 mq oltre locale deposito di circa 150 mq; al piano primo verranno realizzati due appartamenti uso civile residenziale o studio/ufficio secondo le esigenze e le attività. 
CLASSE ENERGETICA: Non Applicabile 
 
											L'utente non ha inserito alcuna descizione
												 Ci trovi qui:
						
						VIA DOMIZIANA N. 354, 81034						Mondragone (CE)
						
												Tel: click per vedere | Cell: click per vedere | Web: www.immobiliaregiomar.it