Annuncio inserito da:   Studio Giuliani Real Estate

vendita - appartamento - Via Tevola 40, Velletri (RM)

Zona: non indicata
Rif. 4206990 RG 839 / 201
112.500€
  • 95  mq
  • locali
  • C. E. Non indicata 
vedi sulla mappa

dettagli

Inserito: 2 mesi fa
  • interno immobile
    • Tipo: appartamento
    • Stato: buono/abitabile
    • Superficie: 95 mq
    • Locali: 3
    • Bagni: 1
    • Tipo cucina: angolo cottura
    • Riscaldamento: autonomo
    • Tipo riscaldamento: a metano
    • Clase energetica: non indicato
    • IPE: 175 kwh/mq annui
  • esterno immobile
    • Piano: terra / rialzato di 1
    • Livelli: 1
    • Balconi: 1
    • Box: non indicato
    • Giardino: non indicato
    • Pannelli solari: non indicato
  • altre informazioni
    • Categoria: Residenziale
    • Anno construzione: non indicato
    • Tipo proprietà: non indicato
    • Stato al rogito: non indicato
    • Arredato: non indicato
    • Spese cond./gen.: n.i. /anno
    • Permuta: non indicato
caratteristiche
  • presente
  • non presente
  • info mancanti
  • ascensore
  • terrazzo
  • condizionatore
  • zanzariere
  • cantina
  • soffitta
  • piscina interrata
  • imp. satellitare
  • cablato/lan
  • imp. allarme
  • adatto diversamente abili

descrizione

CONTATTACI PER UNA CONSULENZA GRATUITA ALLO 06/87607612
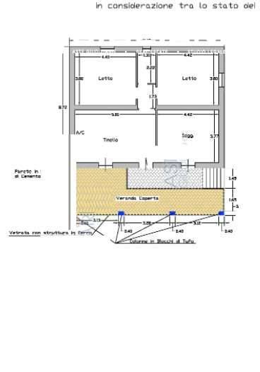
Velletri (RM) Via Tevola n. 40. Appartamento dislocato su un unico livello al piano terra, composto da: piancito esterno posto a ridosso dell'ingresso, tinello con angolo cottura, soggiorno, piccolo disimpegno, n° 2 camere da letto, e piccolo servizio igienico posto centralmente rispetto alle ai 2 vani letto. a ridosso della zona giorno è presente attualmente una struttura adibita a loc. accessorio (veranda Coperta) posta a diretto contatto con la porta d'ingresso e i due vani finestrati posti in corrispondenza del tinello e del vano soggiorno. Il tutto avente una superficie complessiva di mq 95 per l'abitazione e di mq 650 per il giardino.
OFFERTA MINIMA: EURO 112.500,00
DATA DELL'ASTA: 19/12/2023 10:30

Casa è dove si trova il cuore. (Plinio il vecchio)
Con lo STUDIO GIULIANI REAL ESTATE il sogno diventa realtà!
Il nostro team di professionisti offre assistenza, consulenza legale e stragiudiziale per tutti i beni mobili e immobili in asta giudiziaria. I servizi offerti al nostro cliente sono molteplici:
Ricerca dell'immobile con valutazione immobiliare
Valutazione preliminare tecnica e studio della perizia con geometra in sede
Valutazione economica con broker finanziario in sede con possibilità di mutuo fino al 100% del prezzo di aggiudicazione
Prenotazione visita degli immobili oggetto di interesse tramite il custode giudiziario
Partecipazione in asta, il cliente verrà seguito fino alla consegna delle chiavi
Effettuiamo inoltre pratiche di saldo e stralcio e di acquisto del credito dai maggiori istituti bancari.
La nostra parcella è dovuta solo in caso di aggiudicazione.
Il nostro team è a vostra completa disposizione per fornirvi tutte le informazioni e per fissare un appuntamento per una consulenza gratuita presso le nostre sedi di Velletri e Nettuno.
I dati inerenti l'immobile ed il materiale fotografico contenuti nel presente annuncio verranno confermati in sede di consulenza con la documentazione aggiornata disponibile.
Puoi consultare tutti gli immobili disponibili in aggiornamento quotidiano sul nostro sito ...
Studio Giuliani Real Estate
Velletri Via Eduardo De Filippo 2b
Nettuno Via Santa Maria 4
Telefono 06/87607612
Cell 3519048182
Mail info.slg@dominioaste.it
Seguici Su Facebook!
CLASSE ENERGETICA: G 175 kWh/m2 a

vedi l'annuncio sulla mappa

Indirizzo di questo annuncio: Via Tevola 40 , Velletri (RM)

annunci simili per te

Rif. annuncio 4206990 RG 839 / 201
nome agenzia

Studio Giuliani Real Estate

contatta l'utente

L'utente non ha inserito alcuna descizione