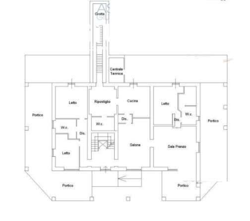
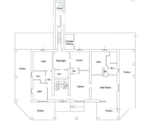
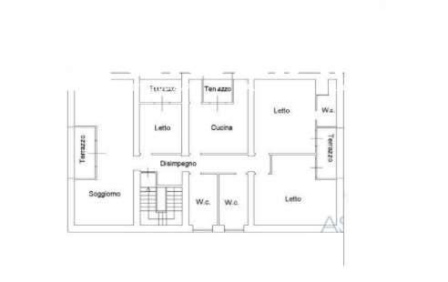
CONTATTACI PER UNA CONSULENZA GRATUITA ALLO 06/87607612 Marino (RM) Via Appia Nuova Km. 21. Villa di ampia metratura disposta su tre livelli, composta da piano terra con zona giorno, con ampie stanze per saloni e cucina, restanti piani con zona notte, disimpegni e corridoi. L'immobile ha una superficie abitativa di oltre 700 mq, con annesse pertinenze e giardino di 5720 mq.
OFFERTA MINIMA: EURO 692.929,69
DATA DELL'ASTA:   06/09/2024 09:30
Casa è dove si trova il cuore. ("Plinio il vecchio")
Con lo STUDIO GIULIANI REAL ESTATE il sogno diventa realtà !
Il nostro team di professionisti offre assistenza, consulenza legale e stragiudiziale per tutti i beni mobili e immobili in asta giudiziaria. I servizi offerti al nostro cliente sono molteplici:
âEURO¢ Ricerca dellâEUROimmobile con valutazione immobiliare
âEURO¢ Valutazione preliminare tecnica e studio della perizia con geometra in sede
âEURO¢ Valutazione economica con broker finanziario in sede con possibilità  di mutuo fino al 100% del prezzo di aggiudicazione
âEURO¢ Prenotazione visita degli immobili oggetto di interesse tramite il custode giudiziario
âEURO¢ Partecipazione in asta, il cliente verrà  seguito fino alla consegna delle chiavi
âEURO¢ Effettuiamo inoltre pratiche di saldo e stralcio e di acquisto del credito dai maggiori istituti bancari.
âEURO¢ La nostra parcella è dovuta solo in caso di aggiudicazione.
âEURO¢ Il nostro team è a vostra completa disposizione per fornirvi tutte le informazioni e per fissare un appuntamento per una consulenza gratuita presso le nostre sedi di Velletri e Nettuno.
I dati inerenti l'immobile ed il materiale fotografico contenuti nel presente annuncio verranno confermati in sede di consulenza con la documentazione aggiornata disponibile.
Puoi consultare tutti gli immobili disponibili in aggiornamento quotidiano sul nostro sito ...
Studio Giuliani Real Estate
Velletri Via Eduardo De Filippo 2b
Nettuno Via Santa Maria 4
Telefono 06/87607612
Cell 3519048182
Mail info.slg@dominioaste.it
Seguici Su Facebook!
CLASSE ENERGETICA: G 175 kWh/m2 a
