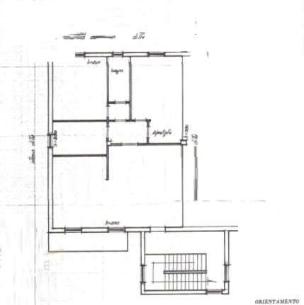
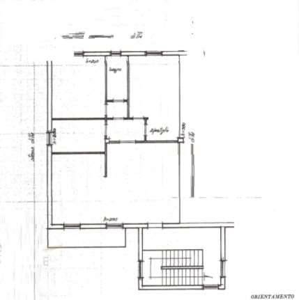
CONTATTACI PER UNA CONSULENZA GRATUITA ALLO 06/87607612 Artena (RM) Via Abbazia n. 16. Appartamento al piano secondo composto da soggiorno, cucina, disimpegno, due camere, due bagni. Il tutto avente una superficie complessiva di mq 113.62.
OFFERTA MINIMA: EURO 51.000,00
DATA DELL'ASTA: 16/11/2022 11:30
Casa è dove si trova il cuore. (Plinio il vecchio)
Con lo STUDIO GIULIANI REAL ESTATE il sogno diventa realtà!
Il nostro team di professionisti offre assistenza, consulenza legale e stragiudiziale per tutti i beni mobili e immobili in asta giudiziaria. I servizi offerti al nostro cliente sono molteplici:
 Ricerca dell'immobile con valutazione immobiliare
 Valutazione preliminare tecnica e studio della perizia con geometra in sede
 Valutazione economica con broker finanziario in sede con possibilità di mutuo fino al 100% del prezzo di aggiudicazione
 Prenotazione visita degli immobili oggetto di interesse tramite il custode giudiziario
 Partecipazione in asta, il cliente verrà seguito fino alla consegna delle chiavi
 Effettuiamo inoltre pratiche di saldo e stralcio e di acquisto del credito dai maggiori istituti bancari.
 La nostra parcella è dovuta solo in caso di aggiudicazione.
 Il nostro team è a vostra completa disposizione per fornirvi tutte le informazioni e per fissare un appuntamento per una consulenza gratuita presso le nostre sedi di Velletri e Nettuno.
I dati inerenti l'immobile ed il materiale fotografico contenuti nel presente annuncio verranno confermati in sede di consulenza con la documentazione aggiornata disponibile.
Puoi consultare tutti gli immobili disponibili in aggiornamento quotidiano sul nostro sito ...
Studio Giuliani Real Estate
Velletri Via Eduardo De Filippo 2b
Nettuno Via Santa Maria 4
Telefono 06/87607612
Cell 3519048182
Mail info.slg@dominioaste.it
Seguici Su Facebook!
CLASSE ENERGETICA: G 175 kWh/m2 a
