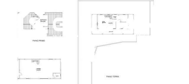
CONTATTACI PER UNA CONSULENZA GRATUITA ALLO 06/87607612 Pomezia (RM) Via delle Ginestre, 6/a. Villetta dalla consistenza di sei vani catastai dislocati su tre livelli (seminterrato, terra e primo) collegati a mezzo di una scala interna, composti da vano cantina e centrale termica al piano seminterrato, cucina soggiorno e due camere, bagno, portico e corte di pertinenza esclusiva al piano terra.
OFFERTA MINIMA: EURO 99.392,70
DATA DELL'ASTA: 19/05/2022 10:00
Casa è dove si trova il cuore. (Plinio il vecchio)
Con lo STUDIO GIULIANI REAL ESTATE il sogno diventa realtà!
Il nostro team di professionisti offre assistenza, consulenza legale e stragiudiziale per tutti i beni mobili e immobili in asta giudiziaria. I servizi offerti al nostro cliente sono molteplici:
Ricerca dellimmobile con valutazione immobiliare
Valutazione preliminare tecnica e studio della perizia con geometra in sede
Valutazione economica con broker finanziario in sede con possibilità di mutuo fino al 100% del prezzo di aggiudicazione
Prenotazione visita degli immobili oggetto di interesse tramite il custode giudiziario
Partecipazione in asta, il cliente verrà seguito fino alla consegna delle chiavi
Effettuiamo inoltre pratiche di saldo e stralcio e di acquisto del credito dai maggiori istituti bancari.
La nostra parcella è dovuta solo in caso di aggiudicazione.
Il nostro team è a vostra completa disposizione per fornirvi tutte le informazioni e per fissare un appuntamento per una consulenza gratuita presso le nostre sedi di Velletri e Nettuno.
I dati inerenti l'immobile ed il materiale fotografico contenuti nel presente annuncio verranno confermati in sede di consulenza con la documentazione aggiornata disponibile.
Puoi consultare tutti gli immobili disponibili in aggiornamento quotidiano sul nostro sito ... o sulla nostra applicazione mobile gratuita DOMINIOASTE.
Studio Giuliani Real Estate
Velletri Via Eduardo De Filippo 2b
Nettuno Via Santa Maria 4
Telefono 06/87607612
Cell 3519048182
Mail info.slg@dominioaste.it
Seguici Su Facebook!
CLASSE ENERGETICA: G 175 kWh/m2 a
