Annuncio inserito da:   Studio Giuliani Real Estate

vendita - villa singola - Via Landi 43, Genzano di Roma (RM)

Zona: non indicata
Rif. 4249816 525/2016
292.500€
  • 371  mq
  • 10  locali
  • C. E. Non indicata 
vedi sulla mappa

dettagli

Inserito: 1 mese fa
  • interno immobile
    • Tipo: villa singola
    • Stato: buono/abitabile
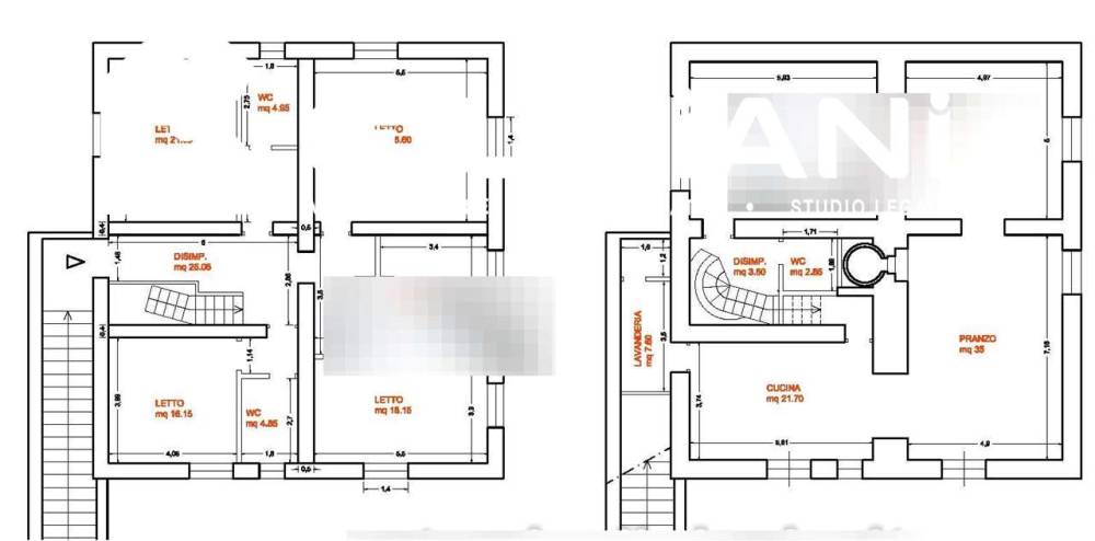
    • Superficie: 371 mq
    • Locali: 10
    • Bagni: 0
    • Tipo cucina: non indicato
    • Riscaldamento: non indicato
    • Tipo riscaldamento: non indicato
    • Clase energetica: non indicato
    • IPE: 0 kwh/ annui
  • esterno immobile
    • Piano: terra / rialzato
    • Totale Piani: Non indicato
    • Livelli: non indicato
    • Balconi: non indicato
    • Box: non indicato
    • Giardino: non indicato
    • Pannelli solari: non indicato
  • altre informazioni
    • Categoria: Residenziale
    • Anno construzione: non indicato
    • Tipo proprietà: non indicato
    • Stato al rogito: non indicato
    • Arredato: non indicato
    • Spese cond./gen.: n.i. /anno
    • Permuta: non indicato
caratteristiche
  • presente
  • non presente
  • info mancanti
  • ascensore
  • terrazzo
  • condizionatore
  • zanzariere
  • cantina
  • soffitta
  • piscina interrata
  • imp. satellitare
  • cablato/lan
  • imp. allarme
  • adatto diversamente abili

descrizione

CONTATTACI PER UNA CONSULENZA GRATUITA ALLO 06/87607612 Genzano di Roma Via Landi, 43. Villino unifamiliare con annesso Terreno, parte coltivato ad uliveto e parte lasciato seminativo con piante ad alto fusto di notevole valore, situato in una zona a carattere prettamente residenziale, molto tranquilla e circondata dal verde, denominata Località Landi- Pedica. Il terreno ha una superficie complessiva di mq 70.054,00.
OFFERTA MINIMA: EURO 292.500,00
DATA DELL'ASTA: 01/07/2025 ore 10:00
Casa è dove si trova il cuore. (Plinio il vecchio)
Con lo STUDIO GIULIANI REAL ESTATE il sogno diventa realtà!
Il nostro team di professionisti offre assistenza, consulenza legale e stragiudiziale per tutti gli immobili in asta giudiziaria e libero mercato. I servizi offerti al nostro cliente sono molteplici:
- Ricerca dellimmobile con valutazione immobiliare
- Valutazione preliminare tecnica e studio della perizia con geometra in sede;
- Valutazione economica con broker finanziario in sede con possibilità di mutuo fino al 100% del prezzo di aggiudicazione;
- Prenotazione visita degli immobili oggetto di interesse tramite il custode giudiziario;
- Partecipazione in asta, il cliente verrà seguito fino alla consegna delle chiavi;
- Effettuiamo inoltre pratiche di saldo e stralcio e di acquisto del credito dai maggiori istituti bancari.
- La nostra parcella è dovuta solo in caso di aggiudicazione.
- Il nostro team è a vostra completa disposizione per fornirvi tutte le informazioni e per fissare un appuntamento per una consulenza gratuita.
I dati inerenti l'immobile ed il materiale fotografico contenuti nel presente annuncio verranno confermati in sede di consulenza.
Puoi consultare tutti gli immobili disponibili in aggiornamento quotidiano sul nostro sito.

CLASSE ENERGETICA: A+

vedi l'annuncio sulla mappa

Indirizzo di questo annuncio: Via Landi 43 , Genzano di Roma (RM)

annunci simili per te

Rif. annuncio 4249816 525/2016
nome agenzia

Studio Giuliani Real Estate

contatta l'utente

L'utente non ha inserito alcuna descizione