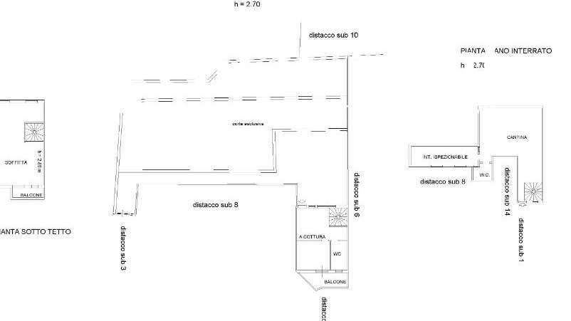
CONTATTACI PER UNA CONSULENZA GRATUITA ALLO 06/87607612 Lariano Via di Colle Fontana 10/a,. Appartamento in villino con giardino, corte esclusiva, deposito e box indipendente. il piano S1 è composto da ingresso, vano scala, soggiorno, corridoio, bagno, deposito ed un ampia intercapedine; il piano T è composto da un vano scala, tinello, bagno, cucina con balcone, soggiorno, ampio giardino e corte esclusiva; il piano 1' sottotetto è composto da corridoio, bagno, camera con balcone, cabina armadio e altra camera.
OFFERTA MINIMA: 63.000,00 EURO
DATA DELL'ASTA: 29/07/2025 15:30
Casa è dove si trova il cuore. (Plinio il vecchio)
Con lo STUDIO GIULIANI REAL ESTATE il sogno diventa realtà!
Il nostro team di professionisti offre assistenza, consulenza legale e stragiudiziale per tutti i beni mobili e immobili in asta giudiziaria. I servizi offerti al nostro cliente sono molteplici:
 Ricerca dell'immobile con valutazione immobiliare
 Valutazione preliminare tecnica e studio della perizia con geometra in sede
 Valutazione economica con broker finanziario in sede con possibilità di mutuo fino al 100% del prezzo di aggiudicazione
 Prenotazione visita degli immobili oggetto di interesse tramite il custode giudiziario
 Partecipazione in asta, il cliente verrà seguito fino alla consegna delle chiavi
 Effettuiamo inoltre pratiche di saldo e stralcio e di acquisto del credito dai maggiori istituti bancari.
 La nostra parcella è dovuta solo in caso di aggiudicazione.
 Il nostro team è a vostra completa disposizione per fornirvi tutte le informazioni e per fissare un appuntamento per una consulenza gratuita presso le nostre sedi di Velletri e Nettuno.
I dati inerenti l'immobile ed il materiale fotografico contenuti nel presente annuncio verranno confermati in sede di consulenza con la documentazione aggiornata disponibile.
Puoi consultare tutti gli immobili disponibili in aggiornamento quotidiano sul nostro sito
Studio Giuliani Real Estate
Velletri Via Eduardo De Filippo 2b
Nettuno Via Santa Maria 4
Telefono 06/87607612
Cell 3519048182
Mail
Seguici Su Facebook!
CLASSE ENERGETICA: A+ 
