dettagli
												Inserito: 1 mese fa
											
					
						
							- 
																interno immobile
								
									- Tipo:
										
											rustico/casale										
									
- Stato:
										
											da ristrutturare										
									
- Superficie:
										
											200 mq										
									
- Locali:
										
											6										
									
- Bagni:
										
											2										
									
- Tipo cucina:
										
											non indicato										
									
- Riscaldamento:
										
											non indicato										
									
- Tipo riscaldamento:
										
											non indicato										
									
- Clase energetica:
										
											non indicato										
									
- IPE:
										
											288 kwh/mq annui										
									
 
- 
								esterno immobile
								
									- Piano:
										
											non indicato																					
									
- Totale Piani:
										Non indicato
									
- Livelli:
										
																						non indicato
																					
									
- Balconi:
										
																						non indicato
																					
									
- Box:
										
																						non indicato
																					
									
- Giardino:
										
																						non indicato
																																
									
- Pannelli solari:
										
																						non indicato
																					
									
 
- 
								altre informazioni
								
									- Categoria:
										
											Residenziale										
									
- Anno construzione:
										
											non indicato										
									
- Tipo proprietà:
										
											non indicato										
									
- Stato al rogito:
										
											non indicato										
									
- Arredato:
										
																						non indicato
																					
									
- 
																				Spese cond./gen.:
																				
											n.i.											/anno										
																			
- Permuta:
										
																						non indicato
																					
									
 
 
										
						
							caratteristiche
							
								- presente
- non presente
- info mancanti
 
						
							
																																- ascensore
- terrazzo
- condizionatore
- zanzariere
- cantina
- soffitta
- piscina interrata
- imp. satellitare
- cablato/lan
- imp. allarme
- adatto diversamente abili
 
											 
										
				
								
								
				
					
						
descrizione
											
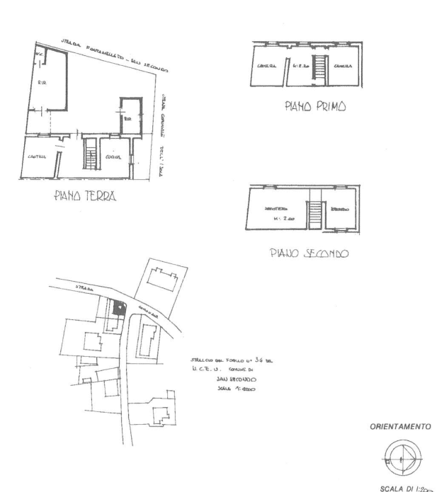
					CASTELL'AICARDI: a poca distanza dal paese di San Secondo, proponiamo in esclusiva, rustico da ristrutturare/demolire con due unità abitative di 200mq commerciali e circa 400mq di area urbana. Possibilità di realizzare una casa indipendente oppure due unità immobiliari.
Per maggiori informazioni, Chiama subito il 3493714434 o lo 0521375478
CLASSE ENERGETICA: G 288,42 kWh/m2 a
				
				
								
					
												
Mappa - Indirizzo non inserito