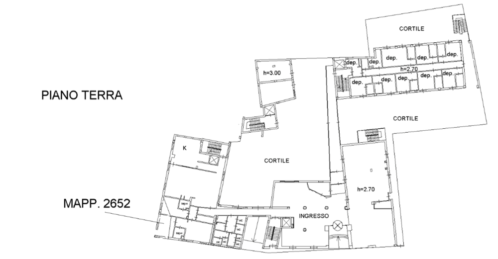
Complesso immobiliare ad uso albergo e ristorante comprensivo di due
piani di autorimesse interrate, situato in Sannazzaro De' Burgondi (PV) in via Roma angolo via San Bernardino, denominato attualmente Hotel Eridano con annesse aree cortilizie di pertinenza. Superficie commerciale complessiva fabbricati 4.051,77 mq. Superficie commerciale complessiva corti interne 1.187,96 mq.
22REB è a disposizione per valutare come la nostra esperienza potrà favorirti nel realizzare il tuo miglior investimento.
L'immobile è oggetto di vendita giudiziaria.
22REB non si occupa di attività di intermediazione imm. di cui alla legge 39/89. Per motivi di privacy la foto dell'immobile/terreno è indicativa ma non esaustiva.
CLASSE ENERGETICA: In fase di valutazione 
 
											Il nostro obiettivo è quello di fornire un servizio completo e di alta qualità ai nostri clienti, guidandoli passo dopo passo nel processo di investimento immobiliare attraverso aste giudiziarie. Collaboriamo con esperti del settore e professionisti qualificati per garantire ai nostri clienti la massima trasparenza e sicurezza nelle transazioni. Grazie alla nostra esperienza nel settore e alla nostra presenza internazionale, in particolare il mercato europeo (Spagna e Italia in primo piano) siamo in grado di identificare le migliori opportunità di investimento immobiliare e di guidare i nostri clienti nella scelta dell'immobile più adatto alle loro esigenze e obiettivi finanziari. Siamo fiduciosi che la nostra presenza sul mercato europeo delle aste giudiziarie porterà nuove opportunità di investimento a privati e investitori professionisti, consentendo loro di accedere a immobili di qualità a prezzi vantaggiosi e di ottenere rendimenti interessanti sui loro investimenti.
												Tel: click per vedere | Mail: click per vedere | Web: WWW.22REB.COM