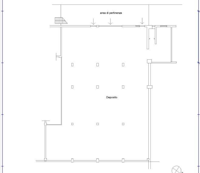
Fabbricato industriale (opificio) in Località Sereghè civ. 10 al piano terra. L’immobile si sviluppa integralmente al solo piano terreno, è costituito da un grande spazio principale per il processo produttivo e da un paio di altri ambienti suddivisi tra loro tramite paratia, il primo di questi è utilizzabile a uso ufficio e il secondo è un servizio igienico nel quale sono installati tre sanitari. lo spazio principale presenta, sul lato apposto al suo ingresso una superficie marginale occupata da un vano chiuso adibito a piccolo magazzino/deposito con soprastante un soppalco al quale si accede tramite da scala di ferro.All’esterno è presente, come area di pertinenza uno spazio di circa mq 67 che separa il capannone dalla strada. - Il Prezzo visualizzato è la Base d'Asta in quanto l’immobile è oggetto di esecuzione immobiliare venduto tramite Asta Giudiziaria. - L'immobile aggiudicato, viene venduto libero e sgombro da persone cose ed ipoteche nello stato di fatto e di diritto in cui si trova. - Non rappresentiamo il Tribunale, ma lavoriamo nell'esclusivo interesse del potenziale acquirente per garantire un acquisto sicuro. - I consulenti di ASTE ITALIA ti assisteranno in tutte le attività dell'iter giudiziario dalla visita dell'immobile fino alla consegna chiavi. - Contatta il nostro Servizio Clienti , i nostri operatori sono a disposizione per chiarire i molteplici dubbi per partecipare alle ASTE.
L'utente non ha inserito alcuna descizione
Ci trovi qui:
Via San Lorenzo 5 Int. 41, 16123 Genova (GE)
Tel: click per vedere | Mail: click per vedere | Web: www.asteitalia.online