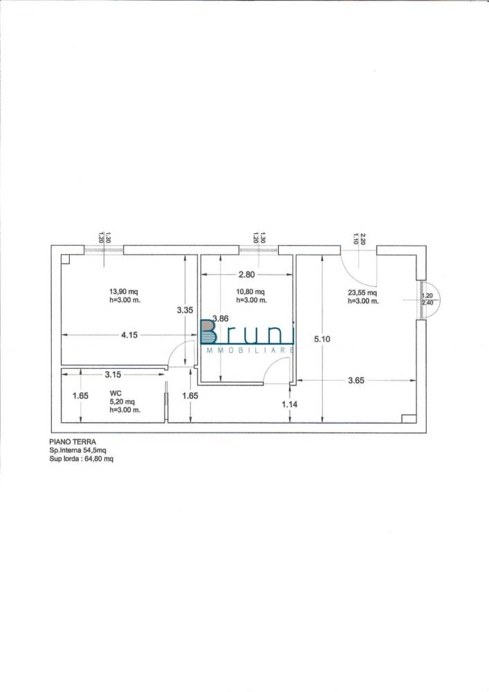
Agenzia Bruni Immobiliare propone: Appartamento in Vendita nelle Marche, in Provincia di Ascoli Piceno, nel comune di Grottammare, di circa 65 mq posto al piano terra con ingresso indipendente in piccola palazzina.
Composto da: ingresso su soggiorno con angolo cottura, due camere da letto matrimoniali, un bagno ad areazione forzata con cabina doccia.
Limmobile in oggetto si presenta in ottime buone condizioni, con pavimentazione in gres su tutta la superficie, serramenti di sicurezza, tapparelle, infissi in legno con doppio vetro, aria condizionata, impianti a norma, autonomo.
Ubicato in zona residenziale non distante dal centro e dal mare.
 
											L'utente non ha inserito alcuna descizione
												 Ci trovi qui:
						
						Via Campania n.73, 63074						San Benedetto del Tronto (AP)
						
												Mail: click per vedere | Web: www.immobiliarebruni.it