Annuncio inserito da:   INTERMEDIA di Roberto Ferretti

affitto - Magazzino - Via dei Materassai 2, Livorno

Zona: Corea, Picchianti
Rif. 3474
750€/mese
  • 65  mq
  • locali
  • C. E.
vedi sulla mappa

dettagli

Inserito: 2 mesi fa
  • interno immobile
    • Tipo: Magazzino
    • Stato: non indicato
    • Superficie: 65 mq
    • Locali: 2
    • Bagni: 1
    • Tipo cucina: non indicato
    • Riscaldamento: non indicato
    • Tipo riscaldamento: non indicato
    • Clase energetica: E
    • IPE: 0 kwh/mq annui
  • esterno immobile
    • Piano: non indicato di 1
    • Livelli: non indicato
    • Balconi: nessuno
    • Box: non indicato
    • Giardino: non indicato
    • Pannelli solari: non indicato
  • altre informazioni
    • Categoria: Commerciale
    • Anno construzione: non indicato
    • Arredato: no
    • Contratto: non indicato
    • Libero da: non indicato
    • Spese cond./gen.: 60 € /mese
caratteristiche
  • presente
  • non presente
  • info mancanti
  • ascensore
  • terrazzo
  • condizionatore
  • zanzariere
  • cantina
  • soffitta
  • piscina interrata
  • imp. satellitare
  • cablato/lan
  • imp. allarme
  • adatto diversamente abili
  • reception
  • parch. clienti

descrizione

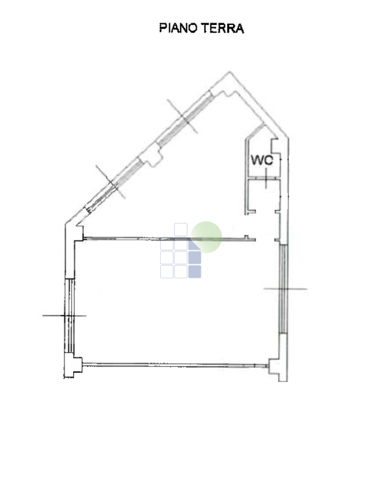
LOCAZIONE IMMOBILE COMMERCIALE ZONA PICCHIANTI ad Euro 750. Proponiamo l'affitto di due ampi locali per un totale di 65 mq. circa (45 mq. di magazzino e 20 mq. di ufficio) in complesso recintato e con accesso da cancello carrabile automatizzato. I locali sono caratterizzati dall'ottimo stato di manutenzione, tanto che se pur accatastati come laboratori possono tranquillamente essere utilizzati come uffici. Comunque il primo vano, pavimentato e climatizzato, ha un ampio accesso doppio carrabile (davanti e dietro), mentre il secondo vano, di forma triangolare anch'esso corredato da doppia porta carrabile a vetro, molto luminoso e dotato di climatizzazione. Nel disimpegno troviamo un bagno/spogliatoio. Ovviamente è possibile fare carico e scarico con mezzi di media grandezza tipo furgoni. Altezza interna 3.80 metri. Riferimento annuncio n. 3474

vedi l'annuncio sulla mappa

Indirizzo di questo annuncio: Via dei Materassai 2 , Corea, Picchianti , Livorno

annunci simili per te

Rif. annuncio 3474
nome agenzia

INTERMEDIA di Roberto Ferretti

contatta l'utente

L'utente non ha inserito alcuna descizione


Ci trovi qui:
Via Niccolò Machiavelli, 47, 57128 Livorno (LI)

Tel: click per vedere | Mail: click per vedere | Web: www.intermediaimmobiliare.com