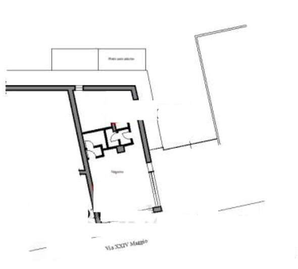
Trattasi di bene costituito da n. 3 immobili, composto da un negozio e un posto auto esterno situati al piano terra ed un garage posto al piano interrato. 
A: L'unità immobiliare destinata all'esercizio commerciale si trova al piano terra con accesso diretto da Via XXIV Maggio di superficie lorda di 97,85 mq, suddiviso in negozio, retro/negozio, un bagno al servizio del pubblico ed un bagno riservato al personale del negozio.
B: Il posto auto esterno, ha una superficie di 12,50 mq.
C: Il garage posto al piano interrato ha una superficie lorda di 21,33 mq.
L'immobile viene venduto dal tribunale tramite asta giudiziaria e il prezzo indicato si riferisce all'offerta minima.
Per chi acquista come prima casa, sono previste agevolazioni.
Per maggiori informazioni puoi contattarci al numero
392 42 27 462 o allo 0721 47 28 74
MULTISERVICE BROKER
Via Nazionale, 2
61022 Vallefoglia (PU)
CLASSE ENERGETICA: D 
