Annuncio inserito da:   Realkasa - Agenzia Immobiliare

affitto - appartamento - Via Giovanni Antonio Sacco 4, Bologna

Zona: San Donato, Fiera
Rif. 1766DT
850€/mese
  • 34  mq
  • locali
  • C. E.
vedi sulla mappa

dettagli

Inserito: 29 giorni fa
  • interno immobile
    • Tipo: appartamento
    • Stato: non indicato
    • Superficie: 34 mq
    • Locali: 2
    • Bagni: 1
    • Tipo cucina: non indicato
    • Riscaldamento: non indicato
    • Tipo riscaldamento: non indicato
    • Clase energetica: F
    • IPE: 232 kwh/mq annui
  • esterno immobile
    • Piano: non indicato di 1
    • Livelli: non indicato
    • Balconi: nessuno
    • Box: non indicato
    • Giardino: non indicato
    • Pannelli solari: non indicato
  • altre informazioni
    • Categoria: Residenziale
    • Anno construzione: non indicato
    • Arredato: si
    • Contratto: non indicato
    • Libero da: non indicato
    • Spese cond./gen.: 80 € /mese
caratteristiche
  • presente
  • non presente
  • info mancanti
  • ascensore
  • terrazzo
  • condizionatore
  • zanzariere
  • cantina
  • soffitta
  • piscina interrata
  • imp. satellitare
  • cablato/lan
  • imp. allarme
  • adatto diversamente abili

descrizione

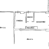
VIA SACCO - (AFFITTO - BILOCALE - SAN DONATO - BOLOGNA) - LIBERO - In zona comoda ai servizi ed alla viabilità, vicino al centro storico ed all'università disponiamo di un bilocale a piano terra di recente costruzione, completamente arredato. Ingresso su zona giorno, disimpegno e camera da letto matrimoniale oltre al bagno finestrato. Accesso da piano terra, senza barriere architettoniche. Riscaldamento centralizzato con contacalorie ed aria condizionata. Ideale per lavoratori. SOLO REFERENZIATI O CON GARANZIE VAI SUL NOSTRO SITO ... e cerca il CODICE 1766DT per vedere le foto 360 gradi per vedere l’annuncio nella nostra realtà immersiva [non tutti gli annunci hanno il 360 verificalo sul sito] LIVE SHOW Sui nostri immobili in vendita i nostri Agenti effettuano dirette su Facebook per spiegare gli immobili nel dettaglio. Controlla sul nostro sito ... Responsabile della locazione Irene Guidetti ------------------------------------------------- Compra con noi per investimento per avere una redditività superiore al mercato tradizionale della locazione ! REALKASA è l’agenzia immobiliare specializzata anche nella gestione di appartamenti per BREVI PERIODI. Contattaci per affidarci il tuo immobile al numero 051.431895 numero dedicato per questo tipo di servizio. Visita il nostro sito ... per visionare altre foto e la scheda dettagliata dell'immobile. -------------------------------------------------------------------------------------------------------------------------------------------- La REALKASA Immobiliare è una realtà di intermediazione immobiliare, giovane e moderna un gruppo di persone che opera mettendo al centro gli interessi dei propri clienti impegnandosi per soddisfarli nei tempi più brevi e con la migliore qualità. La nostra missione è quella di trasferire ai nostri clienti il più alto livello di professionalità sul mercato e garantire la massima sicurezza di ogni operazione. Ti consigliamo e ti affianchiamo durante tutte le varie fasi sia che si tratti di locazioni sia che si tratti di compravendita, mettendo a tua disposizione la nostra esperienza nel settore. REALKASA - IL TUO PARTNER IMMOBILIARE. Servizi: Compravendite, Locazioni, Gestione immobiliare e Affitti Brevi.

vedi l'annuncio sulla mappa

Indirizzo di questo annuncio: Via Giovanni Antonio Sacco 4 , San Donato, Fiera , Bologna

annunci simili per te

Rif. annuncio 1766DT
nome agenzia

Realkasa - Agenzia Immobiliare

contatta l'utente

L'utente non ha inserito alcuna descizione


Ci trovi qui:
Via Andrea Costa 56, 40134 Bologna (BO)

Tel: click per vedere | Mail: click per vedere | Web: http://www.realkasa.it