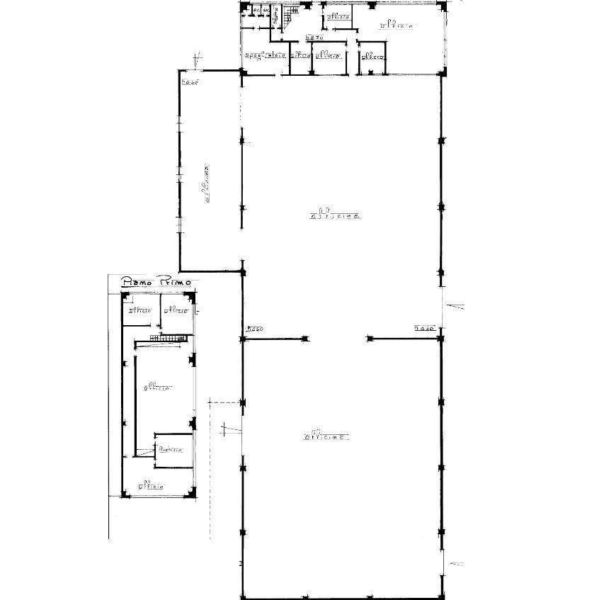
Fabbricato costruito per esigenze industriali e relativa area esterna di pertinenza formato da una porzione ad uso uffici e servizi disposta su due piani fuori terra, con superficie lorda pari a 412 mq, oltre locali ad uso officina e magazzino posti su di un unico piano, collegati tra loro e realizzati in struttura prefabbricata in calcestruzzo e lamiera, di complessivi ulteriori 1.597 mq, con area esterna pavimentata di 3.698 mq delimitata da recinzione. Terreno ad uso agricolo di 420 mq, incolto. Terreno ad uso agricolo di 1.930 mq, incolto. Terreno ad uso agricolo di 1.010 mq, incolto. Tettoia esterna di pertinenza a fabbricato industriale, libera su tre lati, con un lato addossato al fabbricato principale, con struttura realizzata con travi e pilastri metallici e manto di copertura in lamiera, con superficie lorda pari a 77,70 mq. - Il Prezzo visualizzato è la Base d'Asta in quanto l’immobile è oggetto di esecuzione immobiliare venduto tramite Asta Giudiziaria. - L'immobile aggiudicato, viene venduto libero e sgombro da persone cose ed ipoteche nello stato di fatto e di diritto in cui si trova. - Non rappresentiamo il Tribunale, ma lavoriamo nell'esclusivo interesse del potenziale acquirente per garantire un acquisto sicuro. - I consulenti di ASTE ITALIA ti assisteranno in tutte le attività dell'iter giudiziario dalla visita dell'immobile fino alla consegna chiavi. - Contatta il nostro Servizio Clienti , i nostri operatori sono a disposizione per chiarire i molteplici dubbi per partecipare alle ASTE.
 
											L'utente non ha inserito alcuna descizione
												 Ci trovi qui:
						
						Via San Lorenzo 5 Int. 41, 16123						Genova (GE)
						
												Tel: click per vedere | Mail: click per vedere | Web: www.asteitalia.online