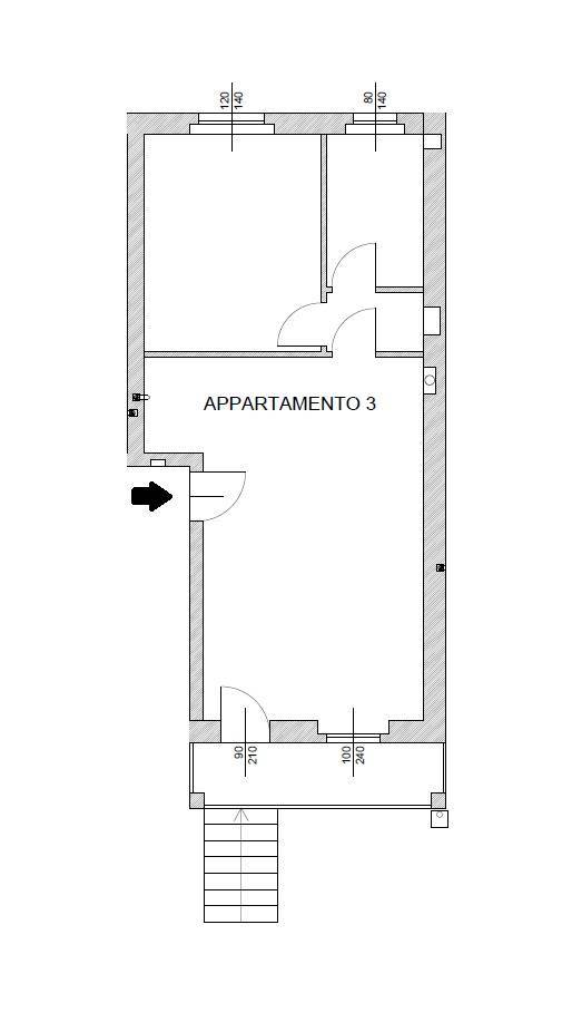
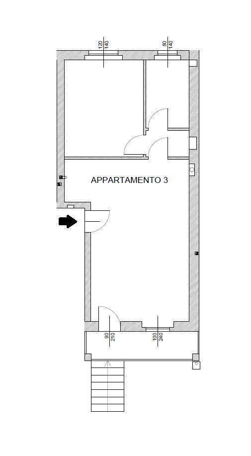
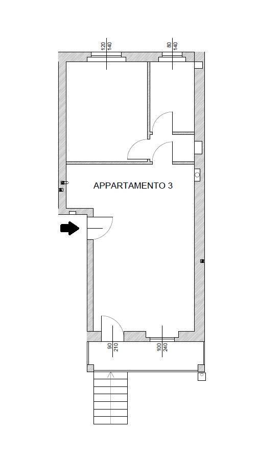
SAN NICOLO' - In palazzina di nuova costruzione CLASSE A, BILOCALE CON GIARDINO PRIVATO composto da soggiorno con angolo cottura con affaccio su balcone coperto e accesso diretto al giardino, disimpegno, camera matrimoniale, bagno finestrato e ripostiglio.
Completano la proprietà una cantina e un ampio box singolo.
Possibilità di personalizzare le finiture interne.
*INFORMATIVA PRIVACY*Per tutelare la privacy dei nostri clienti, vi informiamo che, in alcuni casi, L'INDIRIZZO INDICATO DELL'IMMOBILE E' SOLITAMENTE APPROSSIMATIVO. Maggiori dettagli verranno SEMPRE forniti SOLO dopo contatto telefonico.
Per qualsiasi informazione e per visite potete contattarci ai riferimenti sotto indicati:Si riceve SEMPRE SOLO ESCLUSIVAMENTE con appuntamento da contatto telefonico o mail.dal Lunedì al Venerdì dalle 9.00 alle 12.30 e dalle 14.00 alle 18.00Sabato mattina SOLO PER APPUNTAMENTI - Domenica CHIUSOTEL. 0523.49.08.18MAIL: info@soluzionecasapc.it;MAIL: affitti@soluzionecasapc.it;SOLUZIONECASA Piacenza - Via Monte Penice 18 - 29121 Piacenza
L'utente non ha inserito alcuna descizione
Ci trovi qui:
Via Monte Penice 18, 29100 Piacenza (PC)
Tel: click per vedere | Mail: click per vedere | Web: www.soluzionecasapc.it