Annuncio inserito da:   SOLUZIONE CASA

vendita - appartamento - Via Faustini , Agazzano (PC)

Zona: non indicata
Rif. P2419453
165.000€
  • 105  mq
  • locali
  • C. E. a1 
vedi sulla mappa

dettagli

Inserito: 11 giorni fa
  • interno immobile
    • Tipo: appartamento
    • Stato: non indicato
    • Superficie: 105 mq
    • Locali: 4
    • Bagni: 1
    • Tipo cucina: angolo cottura
    • Riscaldamento: autonomo
    • Tipo riscaldamento: a pavimento
    • Clase energetica: a1
    • IPE: 20 kwh/mq annui
  • esterno immobile
    • Piano: 1 di 2
    • Livelli: non indicato
    • Balconi: 1
    • Box: singolo di 20mq
    • Giardino: non presente
    • Pannelli solari: non indicato
  • altre informazioni
    • Categoria: Residenziale
    • Anno construzione: 2025
    • Tipo proprietà: non indicato
    • Stato al rogito: non indicato
    • Arredato: no
    • Spese cond./gen.: n.i.
    • Permuta: non indicato
caratteristiche
  • presente
  • non presente
  • info mancanti
  • ascensore
  • terrazzo
  • condizionatore
  • zanzariere
  • cantina
  • soffitta
  • piscina interrata
  • imp. satellitare
  • cablato/lan
  • imp. allarme
  • adatto diversamente abili

descrizione

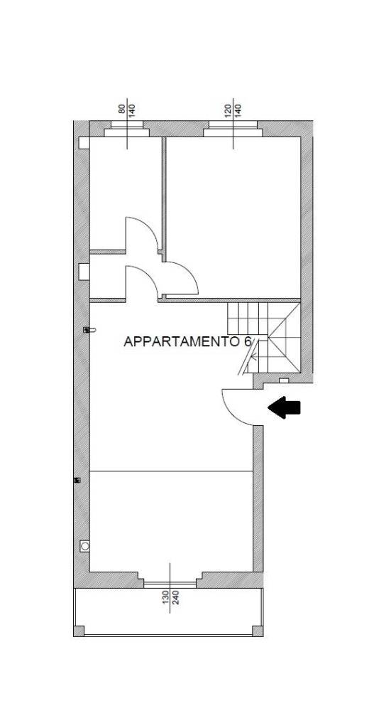
SAN NICOLO' - In palazzina di nuova costruzione CLASSE A, QUADRILOCALE DISPOSTO SU DUE LIVELLI composto da soggiorno con angolo cottura, disimpegno, tre camere, balcone coperto, bagno finestrato (con possibilità secondo servizio) e ripostiglio.
Completano la proprietà una cantina e un box doppio.
Possibilità di personalizzare le finiture interne.

*INFORMATIVA PRIVACY*Per tutelare la privacy dei nostri clienti, vi informiamo che, in alcuni casi, L'INDIRIZZO INDICATO DELL'IMMOBILE E' SOLITAMENTE APPROSSIMATIVO. Maggiori dettagli verranno SEMPRE forniti SOLO dopo contatto telefonico.
Per qualsiasi informazione e per visite potete contattarci ai riferimenti sotto indicati:Si riceve SEMPRE SOLO ESCLUSIVAMENTE con appuntamento da contatto telefonico o mail.dal Lunedì al Venerdì dalle 9.00 alle 12.30 e dalle 14.00 alle 18.00Sabato mattina SOLO PER APPUNTAMENTI - Domenica CHIUSOTEL. 0523.49.08.18MAIL: info@soluzionecasapc.it;MAIL: affitti@soluzionecasapc.it;SOLUZIONECASA Piacenza - Via Monte Penice 18 - 29121 Piacenza

vedi l'annuncio sulla mappa

Indirizzo di questo annuncio: Via Faustini , Agazzano (PC)

annunci simili per te

Rif. annuncio P2419453
nome agenzia

SOLUZIONE CASA

contatta l'utente

L'utente non ha inserito alcuna descizione


Ci trovi qui:
Via Monte Penice 18, 29100 Piacenza (PC)

Tel: click per vedere | Mail: click per vedere | Web: www.soluzionecasapc.it