Disponibile Capannone a Magreta provincia di Modena
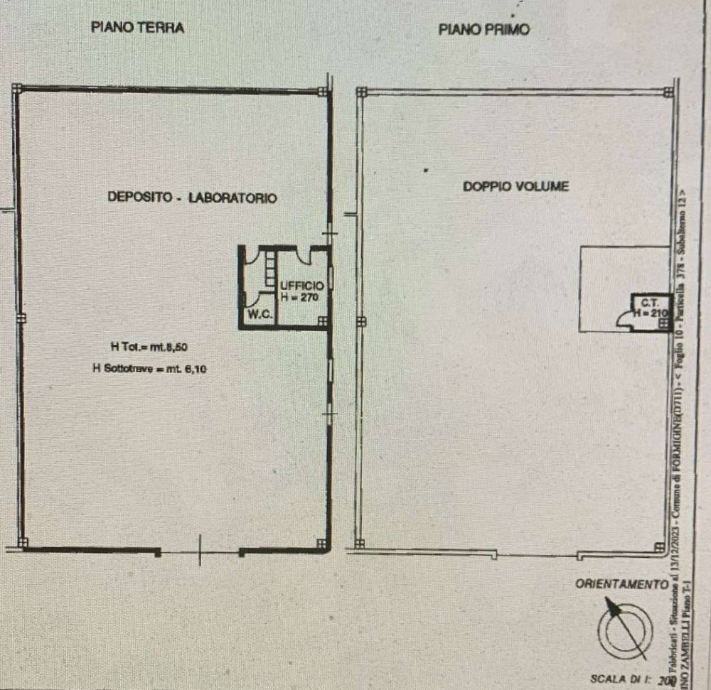
500 mq, già libero per essere affittato con ufficio e bagno provvisti di soppalco come da foto.
CLASSE ENERGETICA: F 
 
											L'utente non ha inserito alcuna descizione
												 Ci trovi qui:
						
						Via XX settembre 34, 41049						Sassuolo (MO)
						
												Cell: click per vedere | Web: www.bpsrl.com