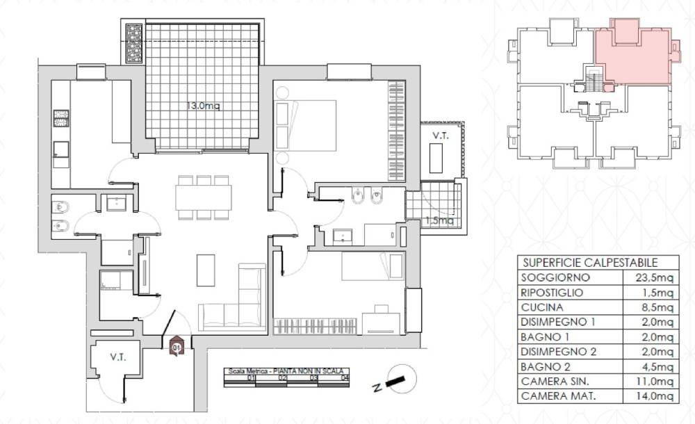
CASTEL MAGGIORE - NUOVA COSTRUZIONE - Nelle immediate vicinanze del Country Club, tra Via Vancini e Via Galliera, è in corso di costruzione un nuovo intervento denominato CM10-B2, con la realizzazione di una palazzina di quattro piani composta da quattordici unità immobiliari. L'appartamento 1, inserito nella palazzina B2, si trova al 1° piano servito da ascensore ed è composto da ingresso sul soggiorno con zona cucina separata ed accesso all'ampio terrazzo abitabile di circa 13 mq, disimpegno notte, camera matrimoniale, camera singola, doppi servizi, di cui uno con accesso ad ulteriore balcone, oltre a ripostiglio/lavanderia. Al piano terra, ampia autorimessa da oltre 20 mq e posto auto. Immobile in classe A4, riscaldamento con pompa di calore a pavimento, aria condizionata, impianto fotovoltaico, tapparelle motorizzate. Consegna settembre 2027. Rif. ICM822 #divisionecantieri
 
											L'utente non ha inserito alcuna descizione
												 Ci trovi qui:
						
						Via Gramsci 155-157, 40013						Castel Maggiore (BO)
						
												Tel: click per vedere | Mail: click per vedere | Web: https://www.immcastelmaggiore.it/