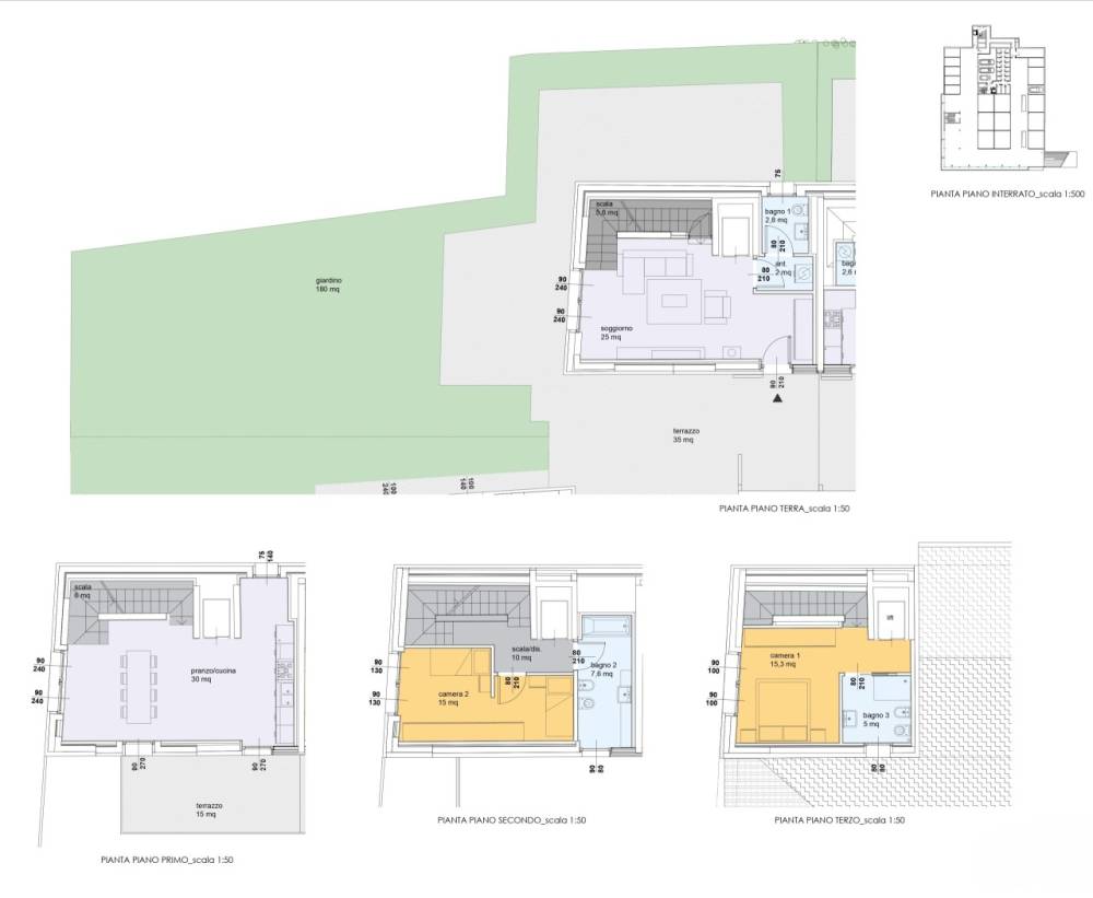
ERBA (CO) – Elegante quadrilocale di nuova costruzione con Domotica e Comfort Moderni. In una splendida cornice verde e tranquilla, in vendita caratteristica e affascinante abitazione collocata nell'originale torreta del cascinale ristruttturato, costituita da: zona giorno con bagno a piano terra, cucina e sala da pranzo al piano primo con sfogo sull'ampio terrazzo, camera doppia con bagno padronale al piano secondo e camera matrimoniale e bagno al piano terzo; tutti i piani collegati da ascensore interno. Completano la soluzione un ampio giardino costituito da una zona di servizio ed una zona verde, un ampio porticato al piano terreno ed un riservao terrazzo coperto al primo piano, oltre box doppio e cantina. Possibilità di realizzare un'ulteriore camera. L'appartamento è dotato di impianto domotico di ultima generazione, che garantisce un elevato livello di comfort, sicurezza ed efficienza energetica. Possibilità di personalizzazione degli interni con finiture di alta gamma, selezionabili da un ricco capitolato di pregio. All’esterno, l’ampio parco giochi condominiale e gli spazi verdi rendono questa soluzione perfetta anche per famiglie o per chi cerca tranquillità senza rinunciare alla qualità.
 
											L'utente non ha inserito alcuna descizione
												 Ci trovi qui:
						
						Via Borsieri 22/B, 22100						Como (CO)
						
												Tel: click per vedere | Mail: click per vedere