NUOVA PROPOSTA
IMMOBILE DISPONIBILE
Immobile situato nella zona di Vertemate con Minoprio (CO) in Via Provinciale per Bulgorello.
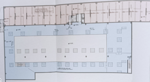
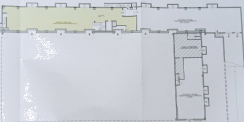
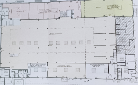
Edificio commerciale composto da una grande struttura autorizzata alla vendita di generi non alimentari con annessa abitazione del custode.
 Con accesso dalla via provinciale per Bulgorello  da cui si ha un comodo accesso carraio in posizione nord che immette nel parcheggio antistante l'ingresso all'esposizione e al ricevimento della clientela. L'abitazione del custode consiste di un soggiorno, cucina, disimpegno notte, due camere, due bagni ed un ripostiglio, formano compendio il portico d'ingresso che rende l'unità abitativa con accesso autonomo e al piano interrato un ampio locale disimpegno.
Per te la possibilità di avere un preventivo per il mutuo a condizioni vantaggiose con i nostri partner.
Ulteriori dettagli, foto degli interni, planimetrie e altre info, se disponibili, saranno consultabili previo appuntamento nella sede di COMO con GIANMARCO che inoltre ti informerà sulle possibilità di aggiudicarti questo affare.
L'immobile pubblicato al momento è sottoposto a procedura di vendita legale; Gescom srl è specializzata nella ricerca e pianificazione di investimenti immobiliari secondo innovative strategie di acquisto. Contattaci subito potrai valutare assieme a un nostro tecnico canali distinti di acquisto dell'immobile, procedura di vendita diretta senza ricorrere all'asta (d.lgs. 149/2022) e ancora stralcio immobiliare. Le informazioni sopra riportate non sostituiscono l'avviso pubblicato dal Tribunale competente ne' l'integrale gestione da parte del delegato designato. Il testo e le specifiche indicate nella presente pagina sono generate automaticamente attraverso l'utilizzo di software e/o da A. I., Gescom srl invita a verificare le formazioni e i materiali multimediali sui canali ufficiali, declinando fin d'ora ogni responsabilità su eventuali errori o incongruenze.
Gescom Italia srl leader negli stralci immobiliari e nella consulenza tecnico legale, non si occupa di attività di intermediazione imm. di cui alla legge 39/89.
Cl. energ. da verificare.
Le foto pubblicate nel presente annuncio sono indicative e non esaustive della tipologia, qualità, consistenza e indicazione geografica dell'immobile.
CLASSE ENERGETICA: A 
