Annuncio inserito da:   GRUPPO FUNZIONE CASA

affitto - ufficio - Via Corsica, Brescia

Zona: non indicata
Rif. OCTT-CORS1700-UFF
1.700€/mese
  • 210  mq
  • locali
  • C. E.
vedi sulla mappa

dettagli

Inserito: 2 mesi fa
  • interno immobile
    • Tipo: ufficio
    • Stato: non indicato
    • Superficie: 210 mq
    • Locali: 7
    • Bagni: 2
    • Tipo cucina: non indicato
    • Riscaldamento: non indicato
    • Tipo riscaldamento: non indicato
    • Clase energetica: A
    • IPE: 118 kwh/mq annui
  • esterno immobile
    • Piano: non indicato di 1
    • Livelli: non indicato
    • Balconi: nessuno
    • Box: non indicato
    • Giardino: non indicato
    • Pannelli solari: non indicato
  • altre informazioni
    • Categoria: Commerciale
    • Anno construzione: non indicato
    • Arredato: no
    • Contratto: non indicato
    • Libero da: non indicato
    • Spese cond./gen.: 330 € /mese
caratteristiche
  • presente
  • non presente
  • info mancanti
  • ascensore
  • terrazzo
  • condizionatore
  • zanzariere
  • cantina
  • soffitta
  • piscina interrata
  • imp. satellitare
  • cablato/lan
  • imp. allarme
  • adatto diversamente abili
  • reception
  • parch. clienti

descrizione

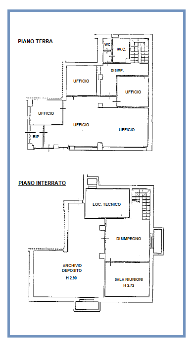
Ufficio/Negozio in Affitto: Via Corsica La Tua Attività al Centro di Tutto! Posizione strategica e visibilità impareggiabile per questo ufficio/negozio di 210 mq su due livelli in Via Corsica. Le quattro ampie vetrine garantiscono massima esposizione, mentre la disponibilità di parcheggio pubblico proprio di fronte all'immobile offre comodità inestimabile per clienti e dipendenti. Al piano terra, troverai cinque uffici già suddivisi da pareti attrezzate e un bagno spazioso e a norma per persone con disabilità. Il piano interrato ospita una comoda sala riunioni, un ampio locale archivio/deposito e vani tecnici. L'immobile è dotato di aria condizionata ed è libero subito. Prezzo richiesto: € 1.700,00. Non perdere l'occasione di portare la tua attività in una posizione di successo! Contattaci subito al numero 030.220.139 oppure consulta il nostro sito internet all’indirizzo ... L'agenzia GRUPPO FUNZIONE CASA è situata nel cuore di Brescia Due, in via Alessandro Lamarmora n. 71 (zona piscine). GRUPPOFUNZIONECASA - La scelta giusta per acquistare, vendere, affittare un immobile!

vedi l'annuncio sulla mappa

Indirizzo di questo annuncio: Via Corsica , Brescia

annunci simili per te

Rif. annuncio OCTT-CORS1700-UFF
nome agenzia

GRUPPO FUNZIONE CASA

contatta l'utente

L'utente non ha inserito alcuna descizione


Ci trovi qui:
VIA ALESSANDRO LAMARMORA N. 71, 25124 Brescia (BS)

Tel: click per vedere | Mail: click per vedere | Web: www.funzionecasa.it