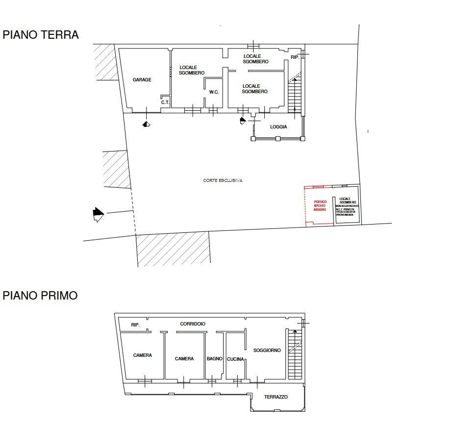
Fabbricato indipendente disposto su due piani fuori terra con sedime pertinenziale di circa mq 200. Il piano terra è composto da: loggia di ingresso, tre locali di sgombero, w.c., ripostiglio; il piano primo da: soggiorno, cucina, corridoio, bagno, ripostiglio, due camere, terrazzo. I pavimenti interni sono in piastrelle di ceramica, i serramenti interni in legno tamburato, i serramenti esterni in legno con persiane, il riscaldamento autonomo con caldaia a gas. - Il Prezzo visualizzato è la Base d'Asta in quanto l’immobile è oggetto di esecuzione immobiliare venduto tramite Asta Giudiziaria. - L'immobile aggiudicato, viene venduto libero e sgombro da persone cose ed ipoteche nello stato di fatto e di diritto in cui si trova. - Non rappresentiamo il Tribunale, ma lavoriamo nell'esclusivo interesse del potenziale acquirente per garantire un acquisto sicuro. - I consulenti di ASTE ITALIA ti assisteranno in tutte le attività dell'iter giudiziario dalla visita dell'immobile fino alla consegna chiavi. - Contatta il nostro Servizio Clienti , i nostri operatori sono a disposizione per chiarire i molteplici dubbi per partecipare alle ASTE.
 
											L'utente non ha inserito alcuna descizione
												 Ci trovi qui:
						
						Via San Lorenzo 5 Int. 41, 16123						Genova (GE)
						
												Tel: click per vedere | Mail: click per vedere | Web: www.asteitalia.online