Annuncio inserito da:   Gescom

vendita - rustico/casale - Via Caprioli , Monticelli d'Ongina (PC)

Zona: non indicata
Rif. X2406/25BIS
19.929€
  • 182  mq
  • locali
  • C. E. Non indicata 
vedi sulla mappa

dettagli

Inserito: 4 giorni fa
  • interno immobile
    • Tipo: rustico/casale
    • Stato: buono/abitabile
    • Superficie: 182 mq
    • Locali: 1
    • Bagni: 0
    • Tipo cucina: abitabile
    • Riscaldamento: autonomo
    • Tipo riscaldamento: a metano
    • Clase energetica: non indicato
    • IPE: 0 kwh/ annui
  • esterno immobile
    • Piano: non indicato
    • Totale Piani: Non indicato
    • Livelli: non indicato
    • Balconi: non indicato
    • Box: non indicato
    • Giardino: non indicato
    • Pannelli solari: non indicato
  • altre informazioni
    • Categoria: Residenziale
    • Anno construzione: non indicato
    • Tipo proprietà: non indicato
    • Stato al rogito: non indicato
    • Arredato: non indicato
    • Spese cond./gen.: n.i. /anno
    • Permuta: non indicato
caratteristiche
  • presente
  • non presente
  • info mancanti
  • ascensore
  • terrazzo
  • condizionatore
  • zanzariere
  • cantina
  • soffitta
  • piscina interrata
  • imp. satellitare
  • cablato/lan
  • imp. allarme
  • adatto diversamente abili

descrizione

NUOVA PROPOSTA

IMMOBILE DISPONIBILE

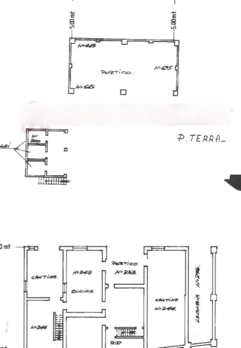
Trattasi di un rustico nel comune di Monticelli d'Ongina PC, in via Caprioli.
Rustico sei locali oltre a servizi, con annessi, in corpo staccato posti su area di corte, portico, fienile, pollai e legnaia.
Portico è pari a circa 72,00 mq.
La superficie del edificio a pollai e legnaia sviluppantesi su due piani è pari a circa 48,00 mq.
Gli edifici sorgono su area della superficie pari a circa 1.300,00 mq.
Situato in una zona comoda e collegata.

Per te la possibilità di ricevere una consulenza telefonica personalizzata per ottenere un preventivo per il mutuo a condizioni vantaggiose con i nostri partner, il consulente ti fornirà tutte le informazioni e ti guiderà nelle possibilità di aggiudicarti questo affare.
L'immobile pubblicato al momento è sottoposto a procedura di vendita legale;
Gescom srl è specializzata nella ricerca e pianificazione di investimenti immobiliari secondo innovative strategie di acquisto.
Contattaci subito per una consulenza telefonica con uno dei nostri esperti, che ti aiuterà a valutare canali distinti di acquisto dell'immobile, come la procedura di vendita diretta senza ricorrere all'asta (d.lgs. 149/2022) e la possibilità di stralcio immobiliare.
Le informazioni sopra riportate non sostituiscono l'avviso pubblicato dal Tribunale competente né l'integrale gestione da parte del delegato designato. Il testo e le specifiche indicate nella presente pagina sono generate automaticamente tramite l'utilizzo di software e/o da A.I. Gescom srl invita a verificare le formazioni e i materiali multimediali sui canali ufficiali, declinando fin d'ora ogni responsabilità su eventuali errori o incongruenze.
Gescom srl, leader negli stralci immobiliari e nella consulenza tecnico-legale, non si occupa di attività di intermediazione immobiliare di cui alla legge 39/89. Cl. energ. da verificare.
Le foto pubblicate nel presente annuncio sono indicative e non esaustive della tipologia, qualità, consistenza e indicazione geografica dell'immobile.
CLASSE ENERGETICA: A

vedi l'annuncio sulla mappa

Indirizzo di questo annuncio: Via Caprioli , Monticelli d'Ongina (PC)

annunci simili per te

Rif. annuncio X2406/25BIS
nome agenzia

L'utente non ha inserito alcuna descizione


Tel: click per vedere