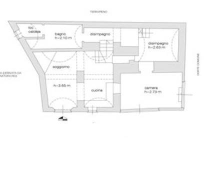
Piena proprietà di appartamento posto al piano terra di un fabbricato che si sviluppa su 2 piani fuori terra, avente una superficie commerciale di 91,90 mq, composto da ingresso su soggiorno con cucina a vista, disimpegno articolato in due ambienti e corridoio, una camera, bagno e locale caldaia. - Il Prezzo visualizzato è la Base d'Asta in quanto l’immobile è oggetto di esecuzione immobiliare venduto tramite Asta Giudiziaria. - L'immobile aggiudicato, viene venduto libero e sgombro da persone cose ed ipoteche nello stato di fatto e di diritto in cui si trova. - Non rappresentiamo il Tribunale, ma lavoriamo nell'esclusivo interesse del potenziale acquirente per garantire un acquisto sicuro. - I consulenti di ASTE ITALIA ti assisteranno in tutte le attività dell'iter giudiziario dalla visita dell'immobile fino alla consegna chiavi. - Contatta il nostro Servizio Clienti , i nostri operatori sono a disposizione per chiarire i molteplici dubbi per partecipare alle ASTE.
 
											L'utente non ha inserito alcuna descizione
												 Ci trovi qui:
						
						Via San Lorenzo 5 Int. 41, 16123						Genova (GE)
						
												Tel: click per vedere | Mail: click per vedere | Web: www.asteitalia.online