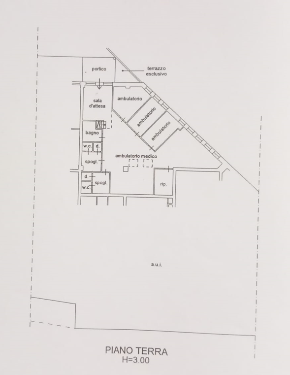
L'agenzia Aimmobiliare propone in vendita immobile commerciale cat. A10 a Santarcangelo di Romagna Se stai cercando un'opportunità unica per investire in un immobile commerciale di categoria A10 , non perdere questa occasione! Situato nella tranquilla periferia di Santarcangelo di Romagna, questo locale commerciale fa parte di un moderno complesso immobiliare sviluppato secondo un piano particolareggiato di iniziativa privata. Caratteristiche principali: Struttura Solida: Edificio in cemento armato, articolato su 4 livelli (piano interrato, piano terra e due piani superiori). Ampia Superficie: L'immobile si sviluppa principalmente al piano terra, dove troverai un grande vano , oltre a 3 stanze da adibire ad uso ufficio o quant'altro e un blocco servizi con servizi igienici . Spazio Flessibile: Al primo piano, un ampio sottotetto è attualmente utilizzato come ufficio e deposito, ideale per supportare le attività del piano sottostante. Questa unità è perfetta per professionisti che desiderano avviare o ampliare la propria attività in un contesto ben strutturato e facilmente accessibile. L'immobile dispone di tutte le autorizzazioni sanitarie per essere adibito ad ambulatorio medico. Contattaci per maggiori informazioni e per organizzare una visita! Richiesta economica Euro 375.000 Rif. AC125 Per informazioni e visite : Roberto Montironi 331 1865095 - 0541 770608 - rimini@immobiliareromagna.it
 
											L'utente non ha inserito alcuna descizione
												 Ci trovi qui:
						
						Viale Tiberio n. 28, 47821						Rimini (RN)
						
												Tel: click per vedere | Mail: click per vedere | Web: www.immobiliareromagna.it