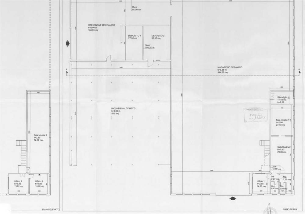
In posizione centrale a Castellarano, a ridosso della Pedemontana, proponiamo in vendita capannoni con destinazione d'uso servizi.
L'immobile, recentemente ristrutturato nel tetto, si trova in zona strategica, ben collegata e facilmente accessibile.
Dispone di ampia area cortiliva, in parte ad uso esclusivo e in parte pubblico, con ottima disponibilità di parcheggi.
Soluzione ideale per attività nel settore dei servizi che cercano visibilità, comodità e funzionalità.
CLASSE ENERGETICA: G 
 
											L'utente non ha inserito alcuna descizione
												 Ci trovi qui:
						
						Via XX settembre 34, 41049						Sassuolo (MO)
						
												Cell: click per vedere | Web: www.bpsrl.com