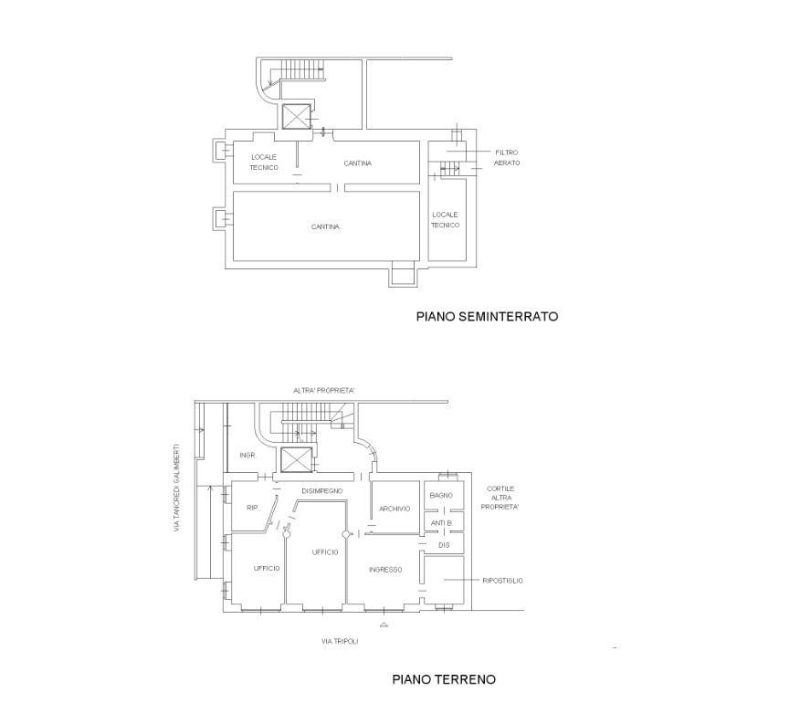
UNITA' IMMOBILIARE DESTINATA A UFFICIO E STUDIO PRIVATO ELEVATA A DUE PIANI FUORI TERRA OLTRE A PIANO SEMINTERRATO COMPOSTO AL PIANO SEMINTERRATO CANTINE E LOCALI TECNICI, AL PIANO TERRENO INGRESSO, UFFICI, SERVIZI IGIENICI E RIPOSTIGLIO, AL PIANO PRIMO UFFICIO E SERVIZI IGIENICI, BALCONI, OTLRE TERRAZZO RIVOLTO VERSO LA VIA T.GALIMBERTI - Il Prezzo visualizzato è la Base d'Asta in quanto l’immobile è oggetto di esecuzione immobiliare venduto tramite Asta Giudiziaria. - L'immobile aggiudicato, viene venduto libero e sgombro da persone cose ed ipoteche nello stato di fatto e di diritto in cui si trova. - Non rappresentiamo il Tribunale, ma lavoriamo nell'esclusivo interesse del potenziale acquirente per garantire un acquisto sicuro. - I consulenti di ASTE ITALIA ti assisteranno in tutte le attività dell'iter giudiziario dalla visita dell'immobile fino alla consegna chiavi. - Contatta il nostro Servizio Clienti , i nostri operatori sono a disposizione per chiarire i molteplici dubbi per partecipare alle ASTE.
 
											L'utente non ha inserito alcuna descizione
												 Ci trovi qui:
						
						Via San Lorenzo 5 Int. 41, 16123						Genova (GE)
						
												Tel: click per vedere | Mail: click per vedere | Web: www.asteitalia.online