Annuncio inserito da:   Punto Immobiliare

vendita - appartamento - , Carasco (GE)

Zona: non indicata
Rif. P2429516
80.000€
  • 194  mq
  • locali
  • C. E. Non indicata 
vedi sulla mappa

dettagli

Inserito: 2 mesi fa
  • interno immobile
    • Tipo: appartamento
    • Stato: non indicato
    • Superficie: 194 mq
    • Locali: 6
    • Bagni: 1
    • Tipo cucina: abitabile
    • Riscaldamento: non presente
    • Clase energetica: non indicato
    • IPE: non indicata
  • esterno immobile
    • Piano: non indicato
    • Totale Piani: Non indicato
    • Livelli: non indicato
    • Balconi: nessuno
    • Box: non indicato
    • Giardino: privato
    • Pannelli solari: non indicato
  • altre informazioni
    • Categoria: Residenziale
    • Anno construzione: non indicato
    • Tipo proprietà: non indicato
    • Stato al rogito: non indicato
    • Arredato: no
    • Spese cond./gen.: n.i.
    • Permuta: non indicato
caratteristiche
  • presente
  • non presente
  • info mancanti
  • ascensore
  • terrazzo
  • condizionatore
  • zanzariere
  • cantina
  • soffitta
  • piscina interrata
  • imp. satellitare
  • cablato/lan
  • imp. allarme
  • adatto diversamente abili

descrizione

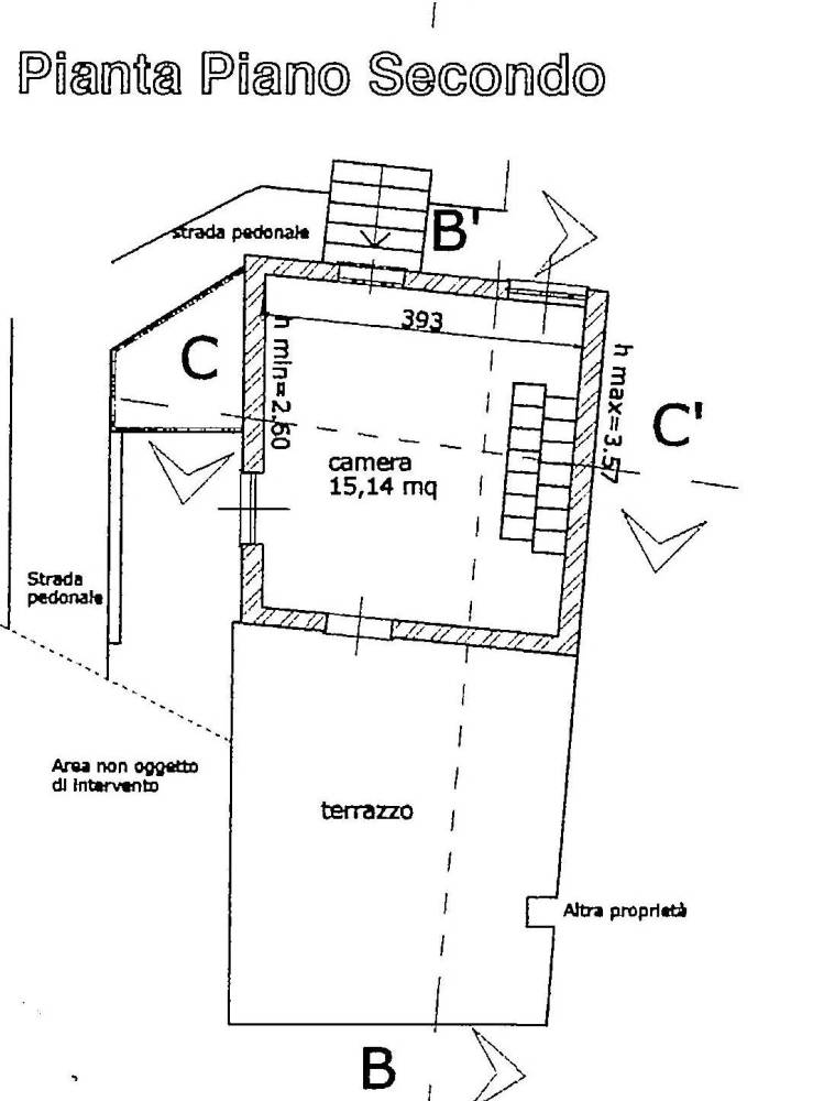
**Appartamento su Due Piani in Vendita - Un'Occasione Imperdibile! **

Scopri questo appartamento su due livelli, con una superficie di circa 190 metri quadrati, situato in una posizione con ottima esposizione al sole! . L'immobile offre un ampio magazzino riqualificato, perfetto come taverna per trascorrere momenti indimenticabili con amici e familiari. La cucina in muratura aggiunge un tocco di charme e autenticità, rendendo questo spazio ideale per chi ama cucinare.

Con più ingressi, l'appartamento si compone di un luminoso soggiorno, tre camere da letto spaziose, un bagno con possibilità di un secondo servizio, uno studio e una dispensa. Lo stato interno è grezzo ma con alcuni lavori di riqualificazione già effettuati, offrendo l'opportunità di personalizzare gli spazi secondo i propri gusti.

Non perdere la terrazza a tetto di circa 10 metri quadrati, perfetta per godere del sole e della vista panoramica. Inoltre, il terreno a fasce è coltivabile e può essere utilizzato come giardino, offrendo un angolo verde da sfruttare. Con la possibilità di realizzare due unità abitative, questo appartamento rappresenta un'ottima opportunità sia per famiglie che per investitori.
Contattaci per maggiori informazioni e per prenotare una visita!

vedi l'annuncio sulla mappa

Indirizzo di questo annuncio: , Carasco (GE)

annunci simili per te

Rif. annuncio P2429516
nome agenzia

Punto Immobiliare

contatta l'utente

L'utente non ha inserito alcuna descizione


Ci trovi qui:
Passo alle Clarisse, 4, 16043 Chiavari (GE)

Tel: click per vedere | Mail: click per vedere | Web: www.agenziapuntoimmobiliare.com