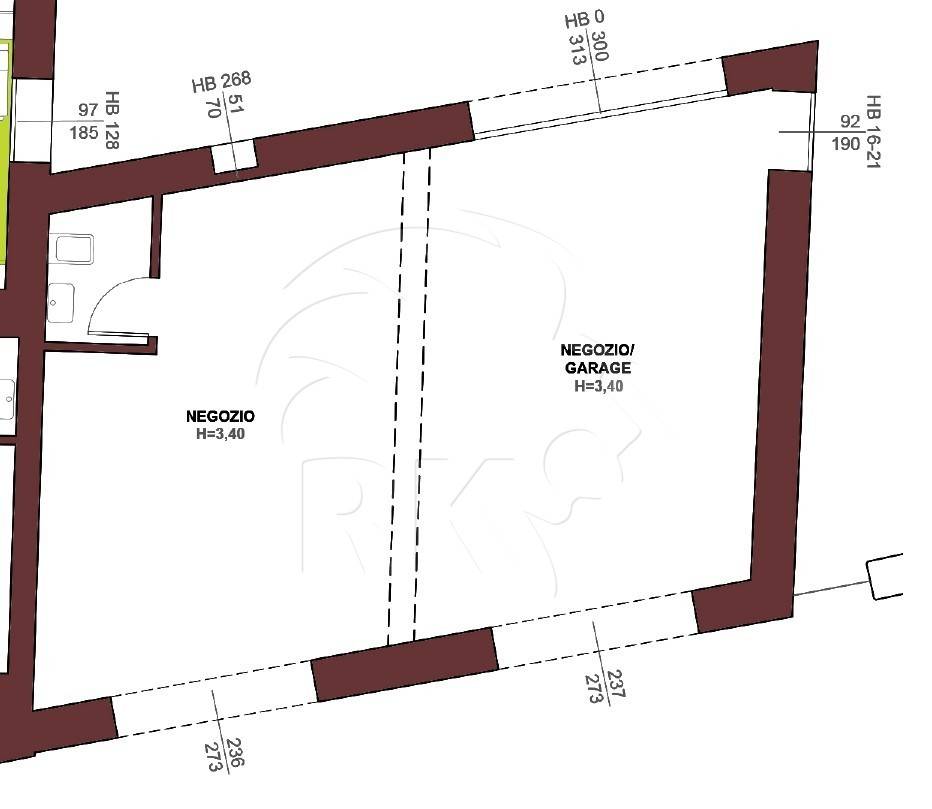
VIA CASTIGLIONE (NEGOZI - PORTA CASTIGLIONE - GIA RDINI MARGHERITA) Proponiamo in vendita due negozi in una delle vie più prestigiose e trafficate di Bologna. Via Castiglione, immediatamente a ridosso della Porta e quindi comodamente accessibili dal centro e dai viali. I negozi sono nuovi da impresa e sono inseriti in un elegante stabile. La zona gode di un flusso costante di clienti e visibilità eccellente. Referente Sofia Stramenga 051431895 Disclamer - Documento non vincolante ai fini contrattuali - Per motivi di privacy, l’indirizzo dell’immobile potrebbe non corrispondere a quello pubblicizzato. Alcune inserzioni potrebbero mostrare rendering che non rappresentano fedelmente la proprietà, ma sono a scopo illustrativo. Contattare l'agenzia per maggiori informazioni. Agenzia immobiliare a Bologna. Compra, vendi o affitta il tuo appartamento con noi. Valutazioni gratuite, assistenza mutui, vasta scelta di immobili in vendita e in affitto. Contattaci al 051431895 o visita il nostro sito realkasa.it
 
											L'utente non ha inserito alcuna descizione
												 Ci trovi qui:
						
						Via Andrea Costa 56, 40134						Bologna (BO)
						
												Tel: click per vedere | Mail: click per vedere | Web: http://www.realkasa.it