vendita - terreno edificabile - via Vicinale Petti contrada Montevergine , Reggio di Calabria

Zona: non indicata
Rif. P2430554
1.780.000€
  • 7299  mq
vedi sulla mappa

dettagli

Inserito: 5 giorni fa
  • caratteristiche
    • Tipo: edificabile
    • Destinazione: non indicata
    • Indice edificabilità: non indicato
    • Rapporto di copertura: non indicato
    • Distanza minima dai confini: non indicato
    • Distanza minima dalla strada: non indicato
    • Altezza massima: non indicato
  • altre informazioni
    • Categoria: Terreno
    • Tipo proprietà: non indicato

descrizione

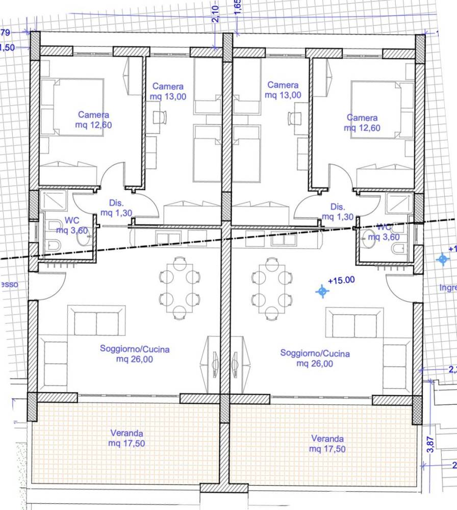
Terreno edificabile con progetto approvato per strutture turistico - ricettive a basso consumo energetico con possibilità di ampie verande panoramiche con vista mare e tetti giardino - Reggio Calabria, Contrada Montevergine. Accessi diretti da Via Vicinale Petti e da strada privata interna. In vendita terreno edificabile di 7.299 mq sito in Via Vicinale Petti - Contrada Montevergine, Reggio Calabria, in posizione panoramica tra la tangenziale A3-SS106 e Via Enotria (zona S. Caterina). L'area ricade in zona omogenea F - servizi alla residenza del PRG, con destinazione d'uso consentita per residence, strutture ricettive, attrezzature sportive e ricreative, esercizi pubblici e turistici.

È già disponibile un progetto edilizio approvato per la realizzazione di un complesso residenziale composto da due corpi di fabbrica. Il complesso residenziale si distingue per un'architettura moderna e armoniosa, a basso consumo energetico e pensata per integrarsi con il naturale declivio del terreno. Gli edifici, disposti su due archi concentrici e sviluppati a gradoni, offrono soluzioni abitative di diversa metratura, caratterizzate da spazi razionali e ambienti luminosi. Ogni appartamento comprende soggiorno con angolo cottura, una o due camere, bagno finestrato e veranda panoramica esposta a ovest. Le finiture esterne sono curate nei dettagli: parapetti in lamiera forata, verande dal design ispirato alle prue delle imbarcazioni e coperture verdi con manto erboso per un migliore isolamento termico. Il progetto privilegia comfort, estetica e funzionalità, garantendo una distribuzione interna ottimale e un'elevata qualità architettonica in perfetta sintonia con l'ambiente circostante. I due corpi di fabbrica sono inoltre serviti dalla zona garage sita al piano interrato e quest'ultima collegata da ascensori e rampe di scale con i livelli soprastanti. Il prezzo di vendita riportato Ú oltre IVA.

vedi l'annuncio sulla mappa

Indirizzo di questo annuncio: via Vicinale Petti contrada Montevergine , Reggio di Calabria

annunci simili per te

Rif. annuncio P2430554
nome agenzia

Consulmedia Immobiliare di Maurizio Canale

contatta l'utente

L'utente non ha inserito alcuna descizione


Ci trovi qui:
Via D. Tripepi (P.zza De Nava), 11/B, 89100 Reggio di Calabria (RC)

Tel: click per vedere | Mail: click per vedere | Web: www.consulmediaimmobiliare.com