L'agenzia Re Casa Immobiliare propone in vendita appartamento di nuova ristrutturazione, in piccolissimo complesso residenziale composto da un unico piano sito in Via Sgattoni n. 7 in Porto D'Ascoli.
Appartamento 45 mq al piano terra con ingresso autonomo. Ingresso su soggiorno con angolo cottura, una camera da letto matrimoniale, un bagno, corte esterna di mq 36 intermente pavimentata. Posto auto scoperto di mq 21 con cancello automatizzato autonomo.
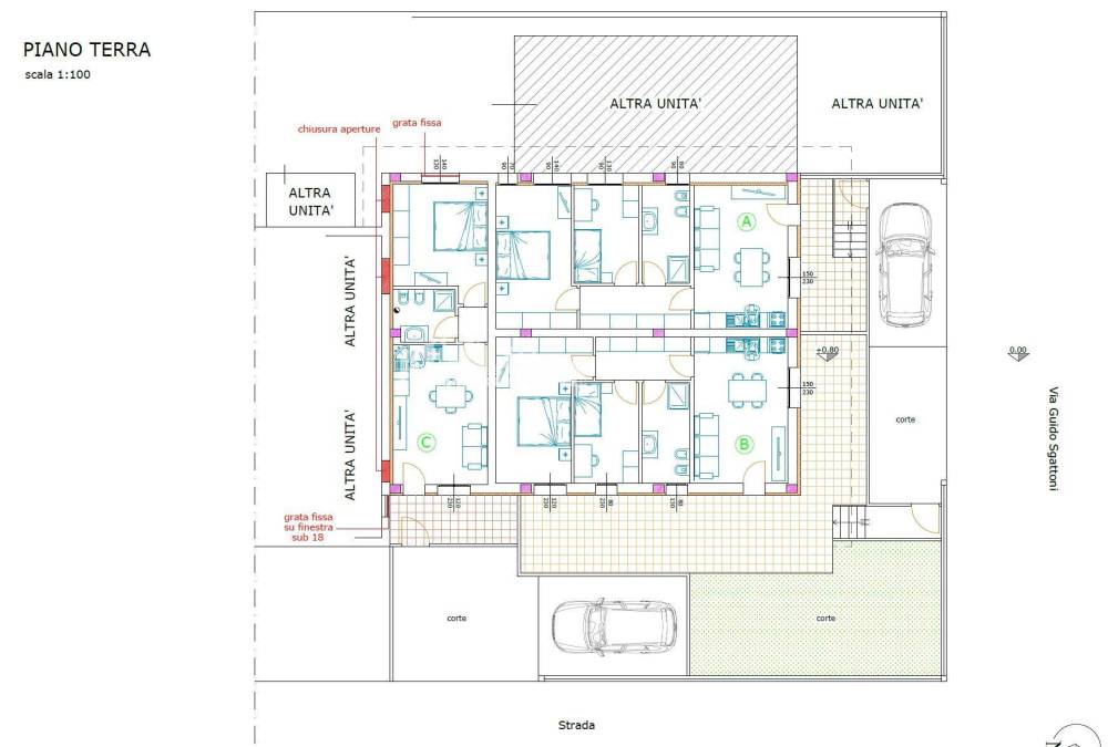
Collocato all'interno di piccolo fabbricato di 3 appartamenti, su un unico livello. Nessun spesa condominiale. Immobile indicato è la unità C. Esposizione est - ovest. Classe energetica prevista A4.
Internamente l'immobile sarà rifinito con: pavimentazione in gres porcellanato, infissi in pvc con doppio vetro a taglio termico secondo le ultime normative relative all'isolamento termo acustico, bagno con sanitari sospesi, tapparelle elettriche, impianto di riscaldamento a pavimento, predisposizione impianto di raffrescamento, portone di ingresso blindato, video citofono.
Possibilità di personalizzione delle finiture con scelta di materiali extra capitolato, con differenza dei costi a seconda dei materiali utilizzati. Inizio lavori previsto per novembre 2025 e ultimazione lavori prevista in 6 mesi dalla stipula del preliminare di compravendita.
Possibilità di usufruire delle detrazioni inerenti la ristrutturazione nella percentuale del 50% in caso di acquisto come prima casa e del 36% in caso di acquisto come seconda casa. La somma imponibile su cui poter calcolare le detrazioni è di Euro 50.000,00.
Ottima soluzione per chi ama la tranquillità, con servizi tutti facilmente raggiungibili, a pochi passi dal Centro Commerciale La Fontana.
 
											L'utente non ha inserito alcuna descizione
												 Ci trovi qui:
						
						Via San Francesco n. 13 b/c, 63074						San Benedetto del Tronto (AP)
						
												Tel: click per vedere | Mail: click per vedere | Web: www.recasa.it