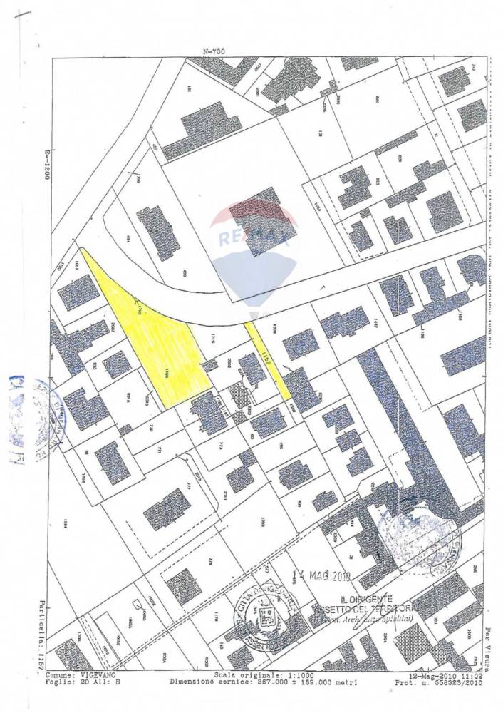
A Vigevano in via Vercelli, proponiamo area di mq. 1290,00 con la possibilità di edificare mq. 645 di SLP. a destinazione residenziale. 
L'indice di permeabilità è pari al 40% della superficie dell'area di proprietà, quindi pari a mq. 516 . 
La zona è  prevalentemente residenziale . E' già stato fatto uno studio di fattibilità per la costruzione di 4 villette a schiera con giardino privato. 
Le informazioni e le immagini contenute in questo annuncio sono prettamente commerciali e non costituiscono in alcun modo elemento contrattuale
 
											L'utente non ha inserito alcuna descizione
												 Ci trovi qui:
						
						Via Gran Sasso 31, 20100						Milano (MI)
						
												Tel: click per vedere | Mail: click per vedere | Web: www.remax.it/associatire