CIAMPINO nella zona semicentrale adiacente a Via di Morena e precisamente in Via Fratelli Wright, la Coldwell Banker Krea Case è lieta di proporre in Vendita un terreno con sovrastante fabbricato; la demolizione del fabbricato genera la possibilità di edificare un complesso residenziale composto di uno o due edifici di medie dimensioni con un'importante area comune e ampie superfici destinate a parcheggio per i residenti.
L'immobile è ubicato in una zona Residenziale molto apprezzata per la sua riservatezza ma allo stesso tempo nelle immediate vicinanze del centro cittadino e di tutti i servizi, inoltre strategicamente posizionata per il veloce raggiungimento della Strada Statale Via Anagnina, il G.R.A. di Roma e la possibilità di raggiungere in poco tempo la Stazione F.S. di Ciampino Centro. 
Ciampino è un Comune ubicato tra il G.R.A. di Roma, la Via Anagnina e la Via Appia; se pur inserito nel tessuto urbano di Roma Capitale è denominato la "Porta" dei Castelli Romani apprezzatissimi per le ampie aree verdi e la buona vivibilità di questi Comuni tutti Storici. Ciampino è munito di un collegamento ferroviario con Roma Termini pari o superiore ad una Metropolitana in quanto conduce alla stazione centrale Capitolina in cica 15min con altissima frequenza (circa 15min), inoltre confina con l'aeroporto che prende il suo nome. Queste uniche caratteristiche rendono il Comune una scelta felice per la propria residenza risultando un giusto compromesso tra praticità e qualità della vita.
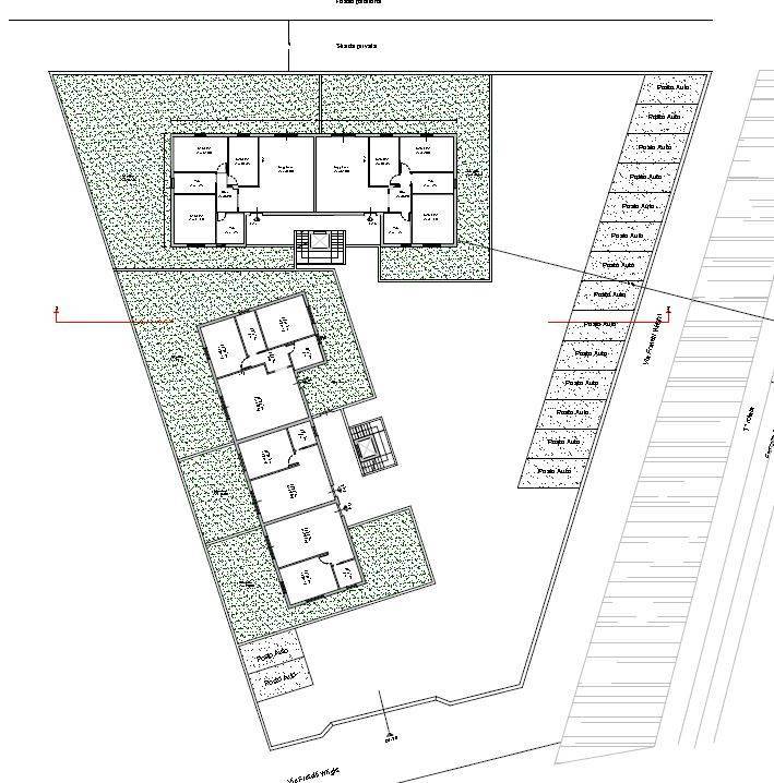
Il Lotto proposto in vendita confina su tutti i lati con strade a basso intensità di passaggio di auto, per questo motivo si presta a numerose possibilità di progettazione del complesso immobiliare e delle aree comuni; la soluzione che proponiamo nelle planimetrie ipotizza la realizzazione di due edifici residenziali disposi su tre livelli fuori terra oltre piano sottotetto con un unico accesso condominiale.
I tagli degli appartamenti proposti presentano immobili di diverse dimensione per dare l'idea delle varie possibilità, così come rappresentati generano in totale quindici unità immobiliari di cui almeno quattro duplex; rimodulando gli spazi è possibile aumentare il numero degli appartamenti per arrivare ad un massimo di circa venti unità.
Nonostante la cubatura sarebbe superiore, quella massima edificabile nel rispetto delle norme edilizie è pari a 3.300mc ovvero circa 1.100mq residenziali.
Classe A.P.E. "G" Cod. CBI143-2042-8222
Le immagini e le proporzioni riportate nell'annuncio non sono da intendersi oggetto di vincolo contrattuale, bensì sono da intendersi come puramente illustrative, eventuali render pubblicati unitamente alle foto sono stati resi disponibili al solo fine di rendere idea della fruibilità degli spazi e possibilità di edificazione.
Per visionare tutte le nostre proposte immobiliari visita il nostro sito internet "... o la nostra pagina Facebook "... Instagram "... youtube "... #coldwellbanker #cbkreacase.
 
											L'utente non ha inserito alcuna descizione
												 Ci trovi qui:
						
						Via Monte Grappa, 6, 00043						Ciampino (RM)
						
												Tel: click per vedere | Mail: click per vedere | Web: www.coldwellbanker.it/kreacase